The Project Gutenberg eBook of A terminal market system, New York's most urgent need

This eBook is for the use of anyone anywhere in the United States and most other parts of the world at no cost and with almost no restrictions whatsoever. You may copy it, give it away or re-use it under the terms of the Project Gutenberg License included with this eBook or online at www.gutenberg.org. If you are not located in the United States, you will have to check the laws of the country where you are located before using this eBook.

Title: A terminal market system, New York's most urgent need

some observations, comments, and comparisons of European markets

Author: Madeleine Black


Release date: April 22, 2009 [eBook #28575]
Most recently updated: January 4, 2021

Language: English

Other information and formats: www.gutenberg.org/ebooks/28575

Credits: Produced by Diane Monico and The Online Distributed
Proofreading Team at https://www.pgdp.net (This file was
produced from images generously made available by The
Internet Archive/American Libraries.)

*** START OF THE PROJECT GUTENBERG EBOOK A TERMINAL MARKET SYSTEM, NEW YORK'S MOST URGENT NEED ***

Copyright, 1912, by Mrs. Elmer Black

A Terminal Market
System


New York's
Most Urgent Need

Some Observations, Comments
and Comparisons
of European Markets



By
Mrs. ELMER BLACK

Member of the Advisory Board of the New York
Terminal Market Commission


Contents


Illustrations


[Pg 3]

Foreword

In the belief that the establishment of a first-class Terminal Market system, worthy of twentieth century requirements, is a matter of vital importance to every family in New York, I have spent considerable time during the past few months investigating markets on both sides of the Atlantic.

As a result I am more than ever conscious of the need for an enlightened public opinion to support the efforts of the Terminal Market Commission to secure this benefit for our community. I am convinced that our fellow-citizens will approve the requisite expenditure once they are roused to a realization of the inadequacy of our food-distributing centers.

In the hope that my investigations may aid in the accomplishment of this reform, I have prepared these observations, comments and comparisons.

It is true that the problem of the high cost of living is afflicting the old lands of Europe, the newer countries like New Zealand, as well as our own wide territories of the United States. The causes vary, according to local conditions; but everywhere it is agreed that a potent force for the amelioration of the condition of the consumers is found in the establishment of efficient Terminal Markets under municipal control for all progressive cities. With wise administration, stringent[Pg 4] inspection and sound safeguards, these municipal markets benefit both producers and consumers. They eliminate considerable intermediate expense, delay and confusion. Last but not least they return a profit to the city treasury.

It is because our New York markets achieve none of these beneficent results that I issue this plea for the establishment of an adequate Terminal Market system. I appeal to all who have the welfare of their city at heart to add the force of their opinion to the accomplishment of this civic improvement.

Madeleine Black (signature) (MRS. ELMER BLACK) (MRS. ELMER BLACK)


[Pg 5]

United States

New York, with over 5,000,000 inhabitants, has no effective market system. The buildings are out of repair, there is little or no organization, and the superintendent has testified before the New York Food Investigation Commission (March 12, 1912) that on their administration last year there was a loss to the city treasury of $80,000. To that must be added due consideration of the inconvenience to the consumers, producers and dealers, and the extra cost of handling entailed by the lack of modern market methods. The city has almost quadrupled its population in a generation, but the markets remain about as they were. Many other cities in the United States not only testify to the value of municipal markets as a means for lowering prices to the consumer, but so guard their interests as to provide a very different balance sheet.

Boston has a profit on its markets of $60,000, Baltimore $50,000, New Orleans $79,000, Buffalo $44,000, Cleveland (Ohio) $27,507, Washington (D. C.) $7,000, Nashville (Tenn.) $8,200, Indianapolis $17,220, Rochester (N. Y.) $4,721, and St. Paul (Minn.) $4,085.

If the following facts concerning municipal markets are studied, also, it will be seen that no city in any way comparable to New York fails to make the municipal markets yield advantages both to the community and the city treasury.


The British Isles

London naturally serves as a starting point for a tour of European investigation. The British capital has, indeed, features that render it comparable in a peculiar degree with New York. The population of both, including their outer ring of suburbs, is over five millions. In each case there is access to the open sea by means of a noble waterway over which passes the commerce of the seven seas. Railroads supplement the water-borne cargoes with home-grown produce, fresh from the farms for the use of urban kitchens.

London's markets do not afford the unbroken example of municipal control that they would if a new system were to be created at the present day. Precedent looms large in British administration and even now there are only two ways of establishing a market—by Parliamentary authority and Royal Charter. King Henry III covenanted by charter with the City of London not to grant permission to anyone else to set up a market within a radius of seven miles of the Guildhall, and this privilege was subsequently confirmed by a charter granted by Edward III in 1326. But of late years the City Corporation has waived its rights and allowed markets to be established in various districts wherever a real necessity has been shown to exist. In fact the markets of London have grown with the city, keeping pace with its requirements.

[Pg 6]

COVENT GARDEN MARKET  The Morning Rush of Farm and Garden Produce for London Consumers. COVENT GARDEN MARKET
The Morning Rush of Farm and Garden Produce for London Consumers.

[Pg 7]

There remains, however, the fact that certain Corporation markets and Covent Garden market serve as great wholesale terminals, connected more or less unofficially with the numerous local markets in the outlying districts.

Chief among the Corporation markets is Smithfield, covering about eight acres, and costing altogether $1,940,000. There are to be found wholesale meat, poultry and provision markets, with sections for the sale, wholesale and retail, of vegetables and fish. In the last twenty years the development of cold storage processes has lowered the quantity of home-killed meat and remarkably increased the importation of refrigerated supplies. Last year the wholesale market disposed of 433,723 tons of meat, of which 77.2 per cent came from overseas.

Ten years ago the United States supplied 41 per cent of the Smithfield meat, but now these supplies have fallen off enormously and the last report of the Markets Committee says: "The United States, in particular for domestic needs, is within measurable distance of becoming a competitor with England for the output of South America." South America and Australasia are, indeed, the chief producers today for the British market.

This has developed a great cold storage business in London. All told London can accommodate 3,032,000 carcases of mutton, reckoning each carcase at 36 pounds. Over 41 per cent of England's imported meat passes through Smithfield, and railroad access is arranged to the heart of the market. The Great Northern Railway Company has a lease from the corporation on 100,000 feet of basement works under the meat market, with hydraulic lifts to the level of the market hall, and inclined roadways for vehicular traffic.

Most of the tenants at Smithfield are commission salesmen, who pay weekly rents for their shops and stalls at space rates, all the fittings being supplied. Last year these rents brought in $427,920. There is a toll of a farthing on every 21 pounds of meat sold, which together with cold storage, weighing and other charges amounted in the same period to $241,635. The meat sales are entirely wholesale, except on Saturday afternoons, when there is a retail "People's Market," where thousands of the very poor buy cheap joints.

[Pg 8]

SMITHFIELD IN THE OLDEN DAYS  From an Old Print Dated 1810. SMITHFIELD IN THE OLDEN DAYS
From an Old Print Dated 1810.


DELIVERING MEAT AT SMITHFIELD TODAY  There is an inclined road by the tree in the center of the picture, leading to the special railroad freight depot. Cars are also run directly under the market and their cargoes are delivered by hydraulic lifts to the stands above. DELIVERING MEAT AT SMITHFIELD TODAY
There is an inclined road by the tree in the center of the picture, leading to the special railroad freight depot. Cars are also run directly under the market and their cargoes are delivered by hydraulic lifts to the stands above.

[Pg 9]

The inspection is very strict, every precaution is taken to ensure cleanliness, and breaches of the regulations are punished by fines or imprisonment. All condemned carcases are sent to a patent Podewill destructor to be reduced by steam pressure and rolling to a powder, which is disposed of as an agricultural fertilizer.

On these central meat markets there is a profit of about $100,000.

The Corporation also controls a great live cattle market at Islington, covering seventy-five acres. Over $2,500,000 have been spent on this market and the modern slaughterhouses attached thereto. These slaughterhouses are not regarded as a remunerative concern, but are provided because they afford hygienic methods, and private slaughterhouses in London are decreasing rapidly. Last year 37,670 cattle, 101,646 sheep, 11,722 calves and 34,981 swine were slaughtered there, the charges being 36 cents a head for cattle, 4 cents for sheep, 8 cents for calves, and 12 cents for hogs. Mainly on account of the extensions and improvements, this market is not being run at a profit at present, but its public utility is held to justify the outlay. Nor does the Deptford Cattle market, of thirty acres, maintained on the banks of the Thames to deal with live cattle imported from abroad, pay its way. But there has been a serious decline in imported stock in late years, especially from America. At this market extreme precautions are taken to prevent the entry of cattle disease that might spread infection to British flocks and herds. All animals landed there must be slaughtered within ten days and submitted to rigid inspection. All hides and offal are immediately disinfected. Five hundred cattle can be unloaded from vessels at Deptford in twenty minutes. Last year 104,351 animals were killed, the meat being sent for sale to Smithfield and Whitechapel.

Billingsgate, the famous fish market of London, is also administered by the Corporation. Its records cover over six hundred years. It is hampered by narrow street approaches, but a very expeditious system of direct delivery of fish from the Thames side of the market building enables the licensed auctioneers to dispose of supplies very quickly. Steam carriers collect the fish from the fleets around the coast and deliver them packed in ice at Billingsgate every night. Billingsgate market has cost the city $1,600,000. Stand prices are high, but there is keen competition whenever a vacancy occurs. Last year the receipts amounted to $182,455. The auctioneers dealt with 194,477 tons of fish, of which 120,905 were water-borne and 73,572 land-borne. The City profited to the extent of over $40,000 on this fish trade.

[Pg 10]

INSIDE SMITHFIELD MARKET  The City of London Corporation's $1,940,000 Terminal—one of the Aisles with Wholesale Stands on each side. INSIDE SMITHFIELD MARKET
The City of London Corporation's $1,940,000 Terminal—one of the Aisles with Wholesale Stands on each side.

[Pg 11]

On the wholesale and retail meat, fruit, vegetable and fish market at Leadenhall there is also a profit of over $5,000.

On the entire municipal market enterprises of the city there is a profit of $156,000. The markets are regarded with especial interest by the Corporation and the Committee which regulates them is considered one of the most important in the whole administration of the city. In order to keep abreast of the times most of the profit is expended on improvements and extensions.

Covent Garden, London's great fruit, flower and vegetable market, is owned by the Duke of Bedford, whose family have held it for hundreds of years. In the past century they have spent $730,000 on extensions and improvements. Of the present modern buildings, the fruit hall cost $170,000 and the flower building $243,000. Formerly the producers were chiefly concerned in the market, holding their stands at a yearly rental. But with the expansion of London the growers have gradually given place to dealers and commission men, who pay twenty-five cents a day per square foot of space, and on the produce, at a regular scale, according to its nature. On flowers there is no toll, but each stand holder pays a fixed rental. Though this market has direct access neither to river nor railroad, it still retains its premier position among the wholesale markets of England. As the approaches are extremely narrow, most of the produce has to be carried on the heads of hundreds of porters from the wagons outside into the market buildings. As it is under private ownership, no figures are issued, but there is known to be a huge profit on the market. For outer London there are fruit and vegetable markets at Stratford, in the east, Kew in the west, the Borough in the south and two railroad markets in the north.

Birmingham, England's chief midland city, has owned its markets since 1824, administering them through a markets and fairs committee. Since 1908 the profits have been somewhat reduced, owing to outlay on improvements and extensions; but although the city has expended $2,156,362 on the markets, the profits have paid off more than half of that indebtedness, besides relieving taxation in other directions.

Not far away is the small city of KIDDERMINSTER, that may be mentioned as affording a demonstration of provincial municipal enterprise, under more restricted conditions. On its vegetable market it makes a profit of $1,000, and on its butter market a profit of $1,500. The population of the city is only 25,000. Another midland city, WOLVERHAMPTON, makes a profit of nearly $20,000.

[Pg 12]

BILLINGSGATE FISH MARKET, LONDON  The Thames Side of the Market, Showing the Steam Carriers Unloading their Cargoes Direct into the Sale Room. BILLINGSGATE FISH MARKET, LONDON
The Thames Side of the Market, Showing the Steam Carriers Unloading their Cargoes Direct into the Sale Room.

[Pg 13]

Liverpool, the great northern port on the Mersey, has spent $1,242,534 on six municipal markets. The only market to lose money is the cattle market, which shows a deficit of $8,000. Liverpool has a cold storage capacity for 2,176,000 carcases. On the whole municipal market enterprise, in this city of 700,000 people, there is an average annual profit of $80,000.

Manchester serves not only its own area but surrounding industrial centers, with a total population of nearly 8,000,000. There are twelve markets and four slaughterhouses. Since 1868 the city has benefited by their administration to the extent of $3,250,000 profit.

Next to that of London, the fish market here is the largest in England. Its annual profit is well over $10,000, in addition to heavy extension payments in late years.

Dublin, the capital of what is often called 'the distressful isle,' makes a profit of $14,000 on the food market and $12,000 more on the cattle market, while EDINBURGH, Scotland's chief city, makes about $15,000 a year on municipal markets.

Statistics are available of something like 150 other British towns and cities, ranging from a population of 5,000 upwards, where there is the conviction born of experience that municipal markets pay not merely in profits, but in convenience to the community, and they have a powerful influence in keeping prices down.


Germany

Perhaps more than any other country in the world Germany places reliance on municipal markets, because of the peculiar pressure of the problem of the high cost of living in the cities of the Fatherland. On several occasions, during the last twelve months, the butchers' stalls have been raided by women in protest against the ten per cent increase in one year on the price of meat. And when, to meet the clamor, the government reduced the hitherto prohibitive import duties on meat by one-half and the inland railroad charges by one-third, it was on condition that the meat brought in should be for delivery to municipal markets or co-operative societies only. The result has been an immediate fall in retail prices ranging up to fifty per cent.

[Pg 14]

BERLIN'S TERMINAL MARKET  An Outside View of One Section of the $7,250,000 Central Market that Caters for the Needs of Consumers in the German Capital. BERLIN'S TERMINAL MARKET
An Outside View of One Section of the $7,250,000 Central Market that Caters for the Needs of Consumers in the German Capital.

[Pg 15]

Berlin's two million people since 1886 have had a splendid terminal market on the Alexanderplatz, consisting of two great adjoining halls, with direct access to the city railroad. One of these halls is entirely wholesale, while the other is partly wholesale and partly retail. Meat, fish, fruit and vegetables are dealt with under the same roof by upwards of 2,000 producers and dealers.

The whole market cost $7,250,000, of which $1,920,711 was for the main market and $4,852,862 was for the slaughterhouses, which are most elaborately equipped to ensure sanitation and cleanliness. Great as the market is, the pressure of business has grown so much that a project is on foot to construct more accommodation at a cost of $15,000,000. The market is maintained by stand rentals and administrative charges and by a fund established for the improvement and extension of the system. On the entire enterprise, when all charges have been met and interest paid, there is a profit of over $135,000 a year.

A committee of eleven, partly city councillors and partly selected representatives of the public, administer the markets with ninety-three officials to ensure the carrying out of their orders. The regulations are most elaborate, especially as regards the inspection of foods, which is conducted by a department having a staff of six hundred.

A healthy competition is created by the system of sales, which may be conducted by the producer himself, or through an approved wholesale dealer, or through one of the six municipal sales commissioners. These municipal sales commissioners have to give bonds on appointment and are not allowed to have any interest in the trade of the market beyond a small percentage on sales. Producers living at a distance can have their business carried through by them under conditions so well understood and respected as to ensure confidence. Though the municipal sales commissioners handle less than a quarter of the sales, they nevertheless act as a check on the private dealers, especially as they issue a regular report on the average wholesale prices. Moreover the purchasers benefit by these market arrangements, for if they buy from a regularly authorized dealer they can file a claim with the administration if the supplies delivered are faulty and if their case is proved the account will be rectified.

About fifty railroad car loads can be handled at once at the market, but when extended accommodation is provided it is intended to deal with two hundred carloads simultaneously. On supplies thus delivered a railroad tax is collected from the receivers for maintaining rail connections, and this yields an annual profit of $11,000.

[Pg 16]

INTERIOR OF THE BERLIN CENTRAL MARKET  The Fish Section of the Great Municipal Market of the German Capital. INTERIOR OF THE BERLIN CENTRAL MARKET
The Fish Section of the Great Municipal Market of the German Capital.

[Pg 17]

Of the stand holders, nine-tenths are monthly tenants, and the remainder pay by the day. The highest charge is 9.5 cents per square meter a day for meat stalls. The fish sold comes mainly from Geestemunde, at the mouth of the Weser, and is sold under the strictest conditions, only a small commission being allowed to be added by the dealers.

The slaughterhouses deal with 800 wagons daily and for the use of the butchers and the market generally 2,000 square meters of distilled water are produced every day, valued at four cents the square meter. Eight thousand pipes conduct the water to every part of the market. To ensure cleanliness, bathrooms and rooms for drying clothes are established for the use of the butchers, who are charged two and a half cents a bath. In inspecting the carcases the veterinaries take the most minute precautions. From every animal four samples are taken, at different parts of the body, and each of these samples is submitted to tests for twenty minutes.

In an average year 14,000 carcases are condemned and destroyed, as well as 400,000 diseased parts. Whenever possible the inspectors cut away diseased portions, and the remainder of the carcase, after being sterilized, is sent to the markets known as the Freibank, for sale to the very poor. This proportion is not so startling when it is considered that something like two million animals are slaughtered every year, of which more than half are pigs. Until recently Germany used to export a large number of prime animals to the London market, but the demands of home consumers now prevent this and the export trade has practically ceased. In fact Germany, in common with the rest of Europe, is now competing for the world's refrigerated supplies.

Storm doors and windbreaks are provided at the entrances to the markets and wagons are only allowed inside at certain hours and through specified doorways. Thus there is an absence of dust, and a carefully arranged series of windows ensure ample ventilation. All dealers have to unpack their stock at least once every seven days, for the destruction of unsound articles. All supplies of unripe fruit, horseflesh and artificial butter have to carry labels disclosing their real nature. Attached to the market is a hospital with skilled attendance, for cases of sickness or injury happening on the market premises.

As in most other centers, the establishment of the market led to the peddlers entering into outside competition. They bought their supplies wholesale inside, and then offered them cheaply outside, free from stand rentals and other charges. This menace to the prosperity of the market grew so great that the peddlers' traffic in adjacent streets was prohibited and strictly limited elsewhere. This measure, in fact, is deemed essential in every city where municipal markets are conducted successfully.

[Pg 18]

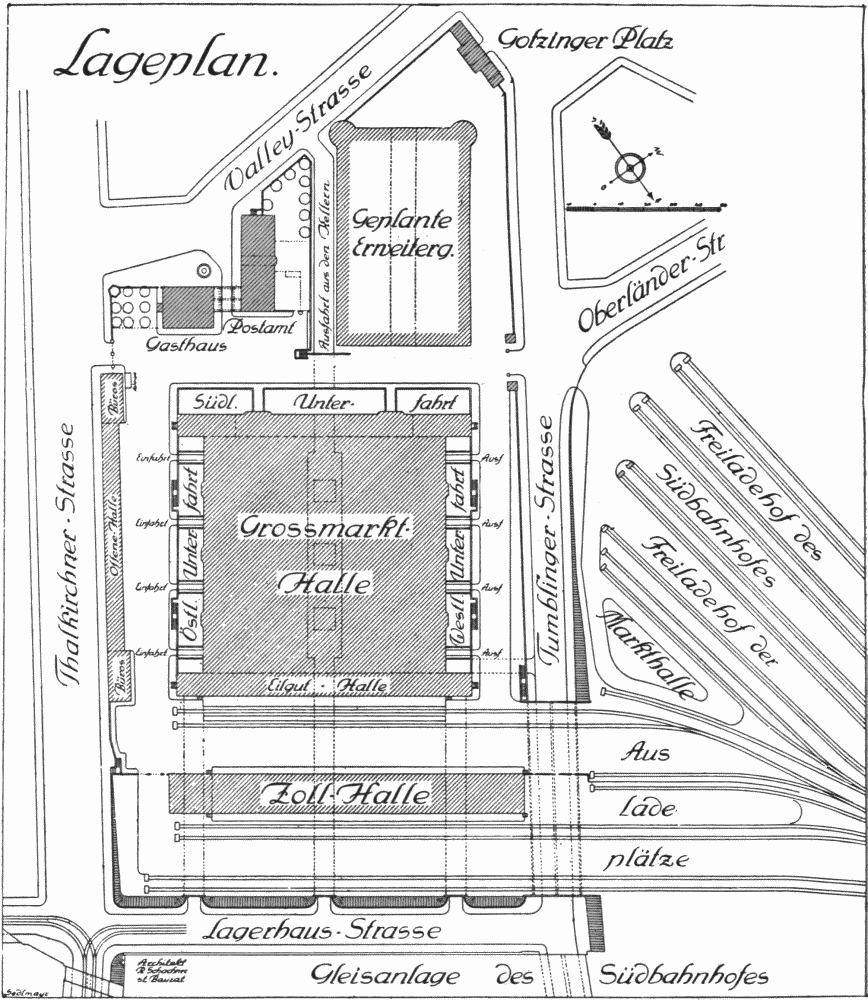
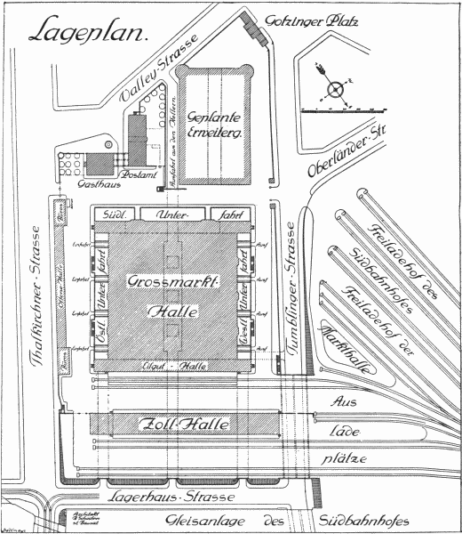
GROUND PLAN OF THE MUNICH MARKET  In front is seen the toll-house and receiving station, then the great market hall and, in the upper part of the picture, the restaurant and administration offices. The sidetracks on the right facilitate the rapid distribution of produce sold at the market. Under the great market hall are large refrigeration chambers connected directly with the railroad. GROUND PLAN OF THE MUNICH MARKET
In front is seen the toll-house and receiving station, then the great market hall and, in the upper part of the picture, the restaurant and administration offices. The sidetracks on the right facilitate the rapid distribution of produce sold at the market. Under the great market hall are large refrigeration chambers connected directly with the railroad.

[Click on image for larger view.]

[Pg 19]

Cologne completed a million dollar market in 1904, with a cold storage plant and connections with the state and narrow gauge railways. Nearly half the space is taken up by wholesale dealers in fruit and vegetables.

The chief fault of the market is the remoteness from the center of the town. At first it had a great success but, on this account, it has not been entirely maintained. Encouraged by that initial prosperity, the city authorities bought a nearer site, but the subsequent decrease in the market's popularity has caused the postponement of extensions. Though the market does not pay the five per cent on capital that is required, the present administration, even with its drawbacks, does succeed in making a profit of about three per cent on the capital invested, last year's income amounting to $535,200.

Hamburg is peculiarly situated as to its market conditions. The market halls of Hamburg and Altona adjoin, but while the former is under the control of the Hamburg senate, the latter is subject to the laws of the Prussian government and administered by the Altona city authorities. Each has a large hall, with a considerable portion of the space used for auctions. The senate of Hamburg appoints two auctioneers and Altona one; but, while the latter is a salaried official, the former are two Hamburg auctioneers approved by the government for the special market business, on undertaking not to trade on their own account. The trade of the chief market is in fish. With the Altona market, the Hamburg market and the Geestemunde market, the sales in this section of Germany are the most important in the Fatherland for fresh sea fish, and salted herrings. About a fourth comes in fishing cutters or steam trawlers direct alongside the market halls, while the remaining three-fourths come from Denmark by rail or by ships from England, Scotland and Norway. Often there are three or four special fish trains from the north in a day, while twenty-five to thirty steamers bring the regular supply of imported fish.

The auctioneers derive their revenue from a four per cent charge on sales of the cargoes of German fishing vessels and five per cent on imported supplies. Out of this they pay half of one per cent to the government on the German and one per cent on the foreign sales. No fees are charged to importers and dealers using the auction section of the fish market. Out of the percentage paid to the government by the auctioneers is provided light and water, the cleansing of the halls and the carting away of refuse for destruction. Strict regulations govern the inspection of the fish and to ensure the destruction of those that have deteriorated they are sprinkled with petroleum immediately on detection.

[Pg 20]

MUNICH TERMINAL MARKET  The World's Most Modern Distribution Center for Foodstuffs. MUNICH TERMINAL MARKET
The World's Most Modern Distribution Center for Foodstuffs.

[Pg 21]

Steam fishing boats using the market quays pay 48 cents for 24 hours' use, seagoing sailing cutters 24 cents, river sailing cutters 6 cents, and small boats 3 cents, in which charges the use of electric and other hoists is included.

From these markets almost the whole of Germany receives its sea fish supplies, for the distribution of which most of the leading dealers have branch houses in the principal cities.

There are also two markets—one in Hamburg and one in Altona—for the sale of farm produce, mostly transported thither by boats. Besides these, there is a big auction for imported fruit, conducted by private firms. All these Hamburg markets are prosperous, and their utility to the community is universally acknowledged.

Frankfort's market system dates back to 1879, when the first hall was erected at a cost of $375,000. It has 548 stands on the main floor renting at $1.08 per two square meters a month, payable in advance, while there is space for 347 more in the galleries at 84 cents per two square meters a month. Nearby is a second hall, built in 1883 at a cost of $143,750. A third hall followed in 1899 at a cost of $38,500, while in 1911 further extensions were determined on and there are fresh projects now under consideration. Besides these covered markets the city has a paved and fenced square that has been used since 1907 as an open market, where stands are rented at 5 cents a day.

Sixty per cent of the stands in the market halls are rented by the month and forty per cent by the day. Tuesdays and Fridays are reserved for wholesale trading. A market commission rules the markets and the police enforce their regulations, the violation of which is liable to cost the offender $7.20 in fines or imprisonment up to eight days.

Munich, with a population of half a million, has the most modern of all the European municipal markets. It was opened in February, 1912, and embodies the improvements suggested by experience of market administration in other cities.[Pg 22]

The total cost was $797,000, of which $510,000 was spent on four communicating iron market halls, with their cellar accommodation underneath, $190,000 on a receiving and toll department, $52,000 on a group of adjacent buildings, including a post-office, restaurant and beer-garden, and $45,000 on roadways. The whole establishment covers 46,500 square meters, of which the market halls occupy 37,100 square meters.

At the northern extremity of the buildings is the toll and receiving department, where produce is delivered at special sidings connected with the south railway station of the city. Next comes a succession of lofty halls, with covered connections, terminating in a small retail section and the administration offices. At the northern end of the great market is a section where express delivery traffic is dealt with, while the western side is occupied with sidings for loading produce sold to buyers from other German centers.

Below the toll house and the market generally are vast cold storage cellars and refrigerating plants for the preservation of surplus supplies till the demand in the market above calls for their delivery. Each market hall is devoted to a separate section of produce, and the cellars below are correspondingly distinct, so that there is an absence of confusion, orderliness is ensured, and rapid deliveries facilitated. Across this underground space from north to south run three roadways, while down the center, from east to west, a further broad aisle is provided, with an equipment of great hydraulic lifts. There are nine of these lifts altogether for heavy consignments, while each stand-owner in the market has, in addition, a small lift connecting his stand and storage cellar.

Both market halls and underground cellars are so constructed as to facilitate ventilation and complete cleanliness. The floors are of concrete and every stand is fitted with running water, with which all the fittings have to be scoured every day. There is both roof and side light, and ample ventilation, while the entrances are wind-screened, to prevent dust. Electric light is used underground, and the cellars are inspected as strictly as the upper halls, to ensure due attention to hygiene. In the center of each market hall there are offices and writing rooms for those using the markets. In the restaurant 150 can be served with meals at one time, or they can be accommodated with seats in the beer-garden.

Associated with this market establishment is a great cattle market and range of slaughterhouses on a neighboring site. The live cattle market dates back for centuries, but the present accommodation[Pg 23] was only completed in May, 1904, at a total cost of $1,600,000.

Last year 809,508 animals were sold, including 432,159 swine and 234,457 calves. In the slaughterhouses 713,228 of these were killed, besides 2,619 horses and 97 dogs. About twenty-five per cent of the animals reach the market by road from neighboring farms, while seventy-five per cent come by rail. For the inspection of all flesh foods there are very strict rules, enforced by the chief veterinary surgeon, Dr. Müller, and a staff of specially trained assistants. As in Berlin, extensive bathrooms are provided for the slaughterhouse staff, and baths are available at nominal charges. Though the new market halls have not been established long enough to provide a definite financial statement, the live-cattle market and slaughterhouses do afford an indication of the success of municipal administration in Munich. Last year the income was $416,500 and the expenditure $410,100, thus showing a profit of $6,400. The new produce halls are certainly the best equipped in the world, and the only element of doubt as to their success arises from the fact that three old-fashioned open markets are nearer the center of the city and for that reason are even now preferred by many retailers. This fact emphasises the importance of selecting a central position in establishing a municipal terminal market.


France

Paris has one of the most skilfully organized municipal market systems in Europe. The chief food distribution center for the 3,000,000 Parisians is established at the Halles Centrales, a series of ten pavilions covering twenty-two acres of ground and intervening streets. Altogether this great terminal market has cost the city more than $10,000,000.

Most of the pavilions are entirely for the wholesale trade, but some are used as retail markets to a limited extent. Retail traders are being decreased gradually, so that whereas in 1904 there were 1,164 retail stands there are now only 856.

The total receipts of the Halles Centrales and thirty local markets amount to $2,100,000, of which about $1,000,000 is profit. There is a general advance in the wholesale trade, but the local covered markets or marchés de quartier, are not progressing in the same way, so the city does not quite maintain a steady level of market profit.

[Pg 24]

THE HALLES CENTRALES, PARIS  An Outside View, Showing How the Supplies Overflow into the Adjacent Streets, Notwithstanding the Provision of Twenty-two Acres of Covered Pavilions. THE HALLES CENTRALES, PARIS
An Outside View, Showing How the Supplies Overflow into the Adjacent Streets, Notwithstanding the Provision of Twenty-two Acres of Covered Pavilions.

[Pg 25]

The reasons given for the falling off of the retail trade are various, but the principal causes appear to be (1) the growth of big stores, with local branches, that deliver the goods at the door, thus relieving the purchaser of the necessity of taking home market supplies; (2) the number of perambulating produce salesmen, who sell from carts in the street at low rates, having neither store rent nor market tolls to pay, and (3) the growth of co-operative societies.

A complicated and severe code of regulations governs the markets. Commission salesmen at the Halles Centrales must be French citizens of unblemished record and must give a bond of not less than $1,000 in proof of solvency. Producers may have their supplies sold either at auction or by private treaty, as they prefer, and as none of the agents are allowed to do business for themselves the distant growers have confidence in the market methods.

In the retail markets each dealer in fresh meat pays just under $6.00 a week in all, while dealers in salted meats, fish, game and vegetables pay a much lower rate. All, however, in the covered markets pay three taxes—one for the right to occupy a stand, one for the cleaning and arranging of the markets, and one for the maintenance of guardians and officials. In the open markets the stands are rented by the day, week, or year, the rate for the day ranging from ten to thirty cents, according to space. Several of these local markets have charters dating back to pre-revolution days, that cannot now be annulled.

It would be difficult to devise a more thorough system of inspection. An average year's seizures include half a million pounds of meat, 17,000 pounds of fruit and vegetables and half a million pounds of salt water fish.

Thus the Paris market arrangements provide an admirable central clearing house, where supplies are inspected and sold under such conditions as to prevent the artificial raising of prices. It also acts as a feeder to the marchés de quartier, to the great convenience of local consumers. Moreover the producer is safeguarded, for on his supplies a small fixed percentage only can be charged by the salesman, and the current market prices are made public by agents especially detailed for that purpose.

Havre, the well-known French seaport, with a population of 130,000, has a profit of over six per cent on the Halles Centrales and ten per cent on the fish market. All told there is a profit of $27,000 on the twelve municipal markets.

[Pg 26]

KEEN MORNING BUYERS  In the Game Section of the Paris Halles Centrales. KEEN MORNING BUYERS
In the Game Section of the Paris Halles Centrales.

[Pg 27]

The Halles Centrales occupy an entire square in the center of the city and cost $75,000, exclusive of the site. Gardeners and farmers are not permitted to sell their produce on the way to the market and are only allowed to deliver to storekeepers after the wholesale markets are closed. Here, as elsewhere where the markets are successful, every precaution is taken to avoid the prosperity of the market being dissipated by sales in the surrounding neighborhood. The annual rents for butchers are very moderate, ranging from $57.90 to $154.40, vegetable dealers $42.85 to $92.64; dairy produce dealers $52.11 to $85.11, fishmongers $23.16 to $86.85. In the wholesale markets there is an annual trade turnover worth well above $1,000,000, of which fish represents $280,000. So far from the fishermen finding the fish market detrimental to their interests, they welcome it and cheerfully observe the rule forbidding sales on the quays or transit sheds except under special permits.

Lyons, with a population of half a million, may be taken as the best example of a flourishing French provincial city at a considerable distance from the sea. The principal market, La Halle, is known all over France for its public auctions. Accommodation is provided for 276 stalls, rented at 14 cents a day per square meter for fruit, vegetables and cheese, while other stalls for meat and fish are rented at 33 cents per square meter.

At the morning auctions, held at the rear of the hall, are sold immense quantities of fish, oysters, lobsters, game, poultry, butter, cheese, eggs, fruit and vegetables. There is a rule that all supplies must come from outside Lyons, so that local store men cannot there dispose of surplus stocks, but dealers in other French cities often thus relieve themselves when overloaded. These auctions not only enable local dealers to distribute supplies at cheap rates to the small stores all over the city, but wide awake housewives can frequently tell just what the stores gave wholesale for the produce offered to them retail later in the day, so a check can be kept on overcharges.

The auctioneers are given a monopoly of selling for ten years, on binding themselves to pay to the city a sum equal to two per cent on the total annual sales. The minimum is fixed at $1,930 for one stand or $5,650 for four stands, to be paid to the municipal treasury. Two per cent is added to the purchase price of every payment made by buyers at auction, and if this does not amount to $1,930 per stand for the year, the auctioneer has to make up the difference. The poorer classes benefit largely by these sales, banding together to buy wholesale and then dividing their purchases.

[Pg 28]

A DRASTIC INSPECTION  Of Refrigerated Chinese Pork at the Port of Liverpool. A DRASTIC INSPECTION
Of Refrigerated Chinese Pork at the Port of Liverpool.

[Pg 29]

There are also seventeen markets for general retail trade in Lyons. The Terminal Market of La Halle cost the city $886,980. The company which built it was given a concession for fifty years, on a division of profits arrangement, but within sixteen months the utility of the market as an advantageous enterprise for the city was so clearly demonstrated that the municipality bought the company out.


Austria-Hungary

Vienna, with 1,700,000 people to supply, has a magnificently managed system of forty-five markets, seven of which are located in large, well-ventilated halls, all kept spotlessly clean.

Market commissioners appointed by the municipality conduct the business of the markets according to strict regulations, enforcing a rigid inspection of all products as well as weights and measures. Violations of these rules are punishable by fines of about $2.00, imprisonment for 24 hours or exclusion from the markets. Such penalties are enforced when buyers are defrauded, dealers oppose the market authority, or exceed the charges that are posted in the market.

Not merely land and water produce, but general farm and household requisites, are sold at these markets. Outside buying is strictly controlled, owners of boats on the Danube or wagons on the public streets paying toll to the municipality on any sales.

Over $60,000 profit is the average annual yield of the markets to the city treasury, and it is generally agreed that the market system tends to keep down the price of foodstuffs to normal levels.

Buda-pesth has 715,000 people and a very complete market system, under which, though only nominal rentals are charged, there is a profit of over $100,000.

There is one large wholesale terminal market, while six local markets cater for the retail requirements of all quarters of the city. All salesmen are carefully selected; criminals and diseased persons being rigidly excluded. Though a wide variety of articles are sold in the smaller markets besides farm produce, storekeepers are not allowed to rent stalls, so the market men and farmers alone have the use of the buildings. The regulations under which they trade were drawn up by a market commission and confirmed by ministerial decrees. These regulations are regarded in Europe as a model of comprehensiveness and their observance ensures close attention to hygiene. Among the rules is one insisting on the placing of all waste paper in the[Pg 30] public refuse receptacles, while another compels the use of new, clean paper only in wrapping up food products.

Stalls are rented from four to ten cents a day, according to the accommodation. Supplies come by boat, rail and wagon, and when there is pressure on the interior market space sales are allowed from the boats and wagons at a toll of ten cents a day. Otherwise only merchandise is allowed to be sold outside the market halls. Not only must no fish, game, meat or poultry be sold without first being passed by the veterinary inspectors, but none of these articles of diet must be brought to market packed in straw, cloth or paper. Unripe fruit must not be sold to children.

Every day a bulletin issued by the market commission sets out the wholesale prices, while a weekly list gives the retail prices, but in the latter case the note is added that the market commission will not be responsible for any controversy that may arise. All the stocks held by the market traders are insured by the municipality, though not to their full value.

Not only have these markets proved beneficial to the consumers generally, but the market men are unanimous as to their advantage, for they afford a ready and inexpensive means of doing a large business.


Holland

Amsterdam, with a population of 510,000, has all the local markets under the control of the municipality. They are divided into five districts, each managed by a director or market master, responsible to the city council.

Two of the markets are covered, but the remainder are open and are situated by the side of the canals, along which the produce is brought in boats from the farms around. On the administration of the markets in an average year there is a profit of $36,000, but there is a law against making a profit on municipal enterprises, so the surplus is spent on local improvements.

Rotterdam, another great Dutch seaport, operates its markets under similar conditions and makes a profit of $34,000, of which $23,000 comes from the cattle and meat markets.


Belgium

Brussels, possessing a population of half a million, reaps considerable advantage from its picturesque municipal markets, four of which are covered, while several are in the open air.[Pg 31]

The renting of space to standholders at the central market is according to the highest bidder, provided the price is not below $11.58 per month for meat, $9.65 for poultry and game, $5.79 for fruit, vegetables, butter and cheese.

Both producers and dealers sell at these markets, all their supplies being subjected to drastic inspection regulations. All meats are tested by the municipal veterinary surgeon and his staff, while a communal chemist regulates the milk, butter and general dairy produce. The cleansing of the markets is done by the department of public cleanliness. Some of the public markets are managed by a contractor, who receives $250.90 a year for setting up the stalls and keeping them in good order. He deposits a security on undertaking his contract and in default of a satisfactory performance of his work the commune does it and charges him with it.


Comments

It has been testified that New York's annual food supply costs, at the railroad and steamer terminals, $350,000,000. But the consumers pay $500,000,000 for it. The balance of $150,000,000 does not necessarily indicate that any particular section of middle-men have been exacting excessive profits. It merely demonstrates that too many people handle the produce between the farm and the fireside. The provision of an adequate Terminal Market system for New York would apply the remedy.

New York stands alone, for a city of its importance, in having to face an annual deficit on its markets. The results elsewhere prove that the deficit could be turned into a profit by the creation of a Terminal Market system, equipped and administered on twentieth century lines.

America is exporting less foodstuffs than formerly. The annual value has fallen $126,000,000 in eleven years. The growth of the manufacturing population and the relative decrease of the agricultural population, together with the gradual impoverishment of much of our farm land, will soon make conditions worse unless we organize our food distribution.

The first step for New York is the establishment of a Terminal Market system. It is estimated that New York's population will continue to grow at the rate of fully 100,000 a year, so this problem admits of no further procrastination.

In natural resources America is the richest country in the world. Other nations have to import vast quantities of produce because of the restricted area of their territory, the comparative[Pg 32] unfruitfulness of their soil, or their adverse climatic conditions. We have a wide land of boundless fertility, never wholly in the grip of winter's cold. Yet we no more escape the high cost of living than these less favored peoples overseas. They have partially compensated for their disadvantages by organizing their markets, while we have neglected that important branch of civic enterprise.

Everywhere in Europe, the provision of adequate terminal markets under municipal control is pointed to as a powerful aid in keeping food prices down. There is a lesson in that for New York and other American cities.

There is a lesson also for growers in up-state districts, for experience shows that with adequate markets, supplying produce at lower rates, there comes a demand for more farm and garden stuff and a greater variety of it. This directly aids in developing rural prosperity and enhances the value of agricultural land.

I believe a marked improvement will be shown if a bureau is maintained to inform farmers as to the demands of the market and the best method of packing, preparing and despatching their produce so as to reach the market in prime condition. Not only will that aid the market, but it will have a powerful influence in arresting "the drift from the land" to the cities.

The municipality should select central positions for its markets, with rail and river access. It should have effective control not only over the markets but the adjacent streets, wharves, and railroad sidings, so as to obviate evasion of the market tolls. The rentals should not be high, and no sub-letting should be allowed under any circumstances.

Under such conditions, with wise administration, New York's Terminal Market system could be made a model that would be studied by other cities in an age when economic questions absorb the attention of all our public-spirited men and women.

In the interests of the people's health and happiness, no less than in consideration of the municipal finances, all should rally to the support of those who are seeking to secure the consummation of this urgent reform at the earliest possible moment consistent with a full consideration of all its aspects.

The Willett Press, New York


Transcriber's Notes

Moved illustrations to paragraph breaks.

Removed period from "per cent" for consistency.

Removed hyphen from "to-day" for consistency.