The Project Gutenberg eBook of Problems in Periclean Buildings

This eBook is for the use of anyone anywhere in the United States and most other parts of the world at no cost and with almost no restrictions whatsoever. You may copy it, give it away or re-use it under the terms of the Project Gutenberg License included with this eBook or online at www.gutenberg.org. If you are not located in the United States, you will have to check the laws of the country where you are located before using this eBook.

Title: Problems in Periclean Buildings

Author: G. W. Elderkin


Release date: August 24, 2011 [eBook #37197]
Most recently updated: January 25, 2021

Language: English

Other information and formats: www.gutenberg.org/ebooks/37197

Credits: Produced by Chuck Greif, Broward County Library, Stephen Rowland and the
Online Distributed Proofreading Team at http://www.pgdp.net

*** START OF THE PROJECT GUTENBERG EBOOK PROBLEMS IN PERICLEAN BUILDINGS ***


PROBLEMS IN PERICLEAN BUILDINGS





PRINCETON MONOGRAPHS IN ART AND ARCHAEOLOGY II

PROBLEMS IN
PERICLEAN BUILDINGS



BY
G. W. ELDERKIN, Ph.D.

ASSISTANT PROFESSOR, PRECEPTOR IN ART AND ARCHAEOLOGY,
PRINCETON UNIVERSITY





PRINCETON UNIVERSITY PRESS
PRINCETON
LONDON: HENRY FROWDE
OXFORD UNIVERSITY PRESS
1912



Copyright, 1912, by Princeton University Press
for the United States of America.
——
Printed by Princeton University Press,
Princeton, N. J., U. S. A.




CONTENTS
I.The Significance of the Irregularity of the Propylaea1
II.An Interpretation of the Caryatid Porch13
III.The Erechtheum as Built19
IV.The Erechtheum as Planned49




 LIST OF ILLUSTRATIONS
1.East Window of the Pinakotheke.
2.The Pinakotheke as seen from the base of the Bastion of the Temple of Wingless Victory.
3.The Pinakotheke as seen from a point near the axis of the central portal.
4.Plan of Propylaea with zigzag road of ascent.
5.Scene on an Archaic Amphora.
6.North end of western interior foundation of the Erechtheum. View from the east.
7.The ground plan of the Erechtheum as built.
8.The north side of the door in the west wall.
9.North wall at place of contact with the eastern cross-wall.
10.The cutting in the marble block at the N. E. corner of the eastern cella below the supposed floor-level.
11.The interior N. W. corner of the Temple.
12.The original plan of the Erechtheum.

I

THE SIGNIFICANCE OF THE IRREGULARITY OF THE
PROPYLAEA

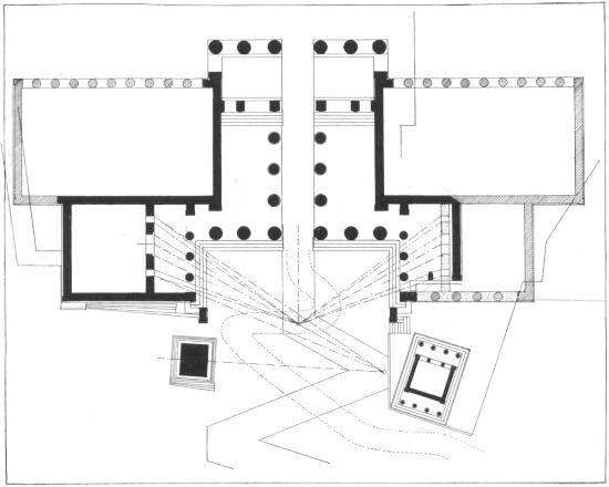
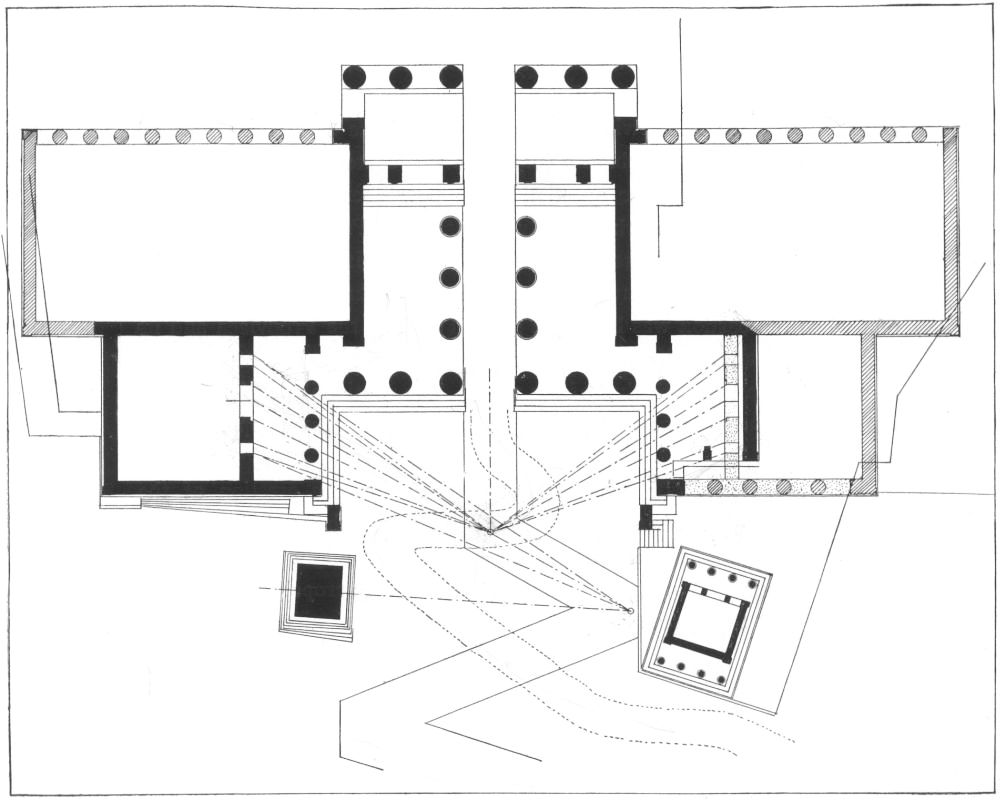
The irregular position of the door and the windows of the north-west wing of the Propylaea has long been remarked, though no explanations of the phenomenon have been offered. Bohn, Die Propylaeen der Akropolis zu Athen, p. 23, says of the south wall of this wing: "Die Wand welche die Halle von dem eigentlichen Gemach trennt, ist von einer Tür und zwei Fenstern durchbrochen. Erstere liegt jedoch nicht in der Mitte, die letzteren wiederum unsymmetrisch zu ihr. Irgend einen Grund, irgend eine axiale Beziehung zu den Säulen vermochte ich in dieser abweichenden Anordnung nicht zu finden." The east wall of the Erechtheum, on the other hand (A. J. A., 1906, Pl. 8), was pierced by a central door and two windows equidistant from it. That such symmetrical arrangement should obtain in the Erechtheum and not in the closely contemporary Propylaea very justly occasions surprise. It is the purpose of this study to attempt to explain the irregularity in the latter.

The first fact to be observed with regard to the façade of the Pinakotheke is concisely stated by Bohn (op. cit., p. 23): "Die Stellung der Säulen bestimmt sich dadurch dass die Tangente an die Westseite der östlichsten genau in die entsprechende Flucht der Hexastylstützen fällt." The position of the anta at the eastern end of the lesser colonnade is also fixed by the requirement that it stand directly beneath a triglyph. This anta in turn determined the position of the eastern window, for the west face of the anta and the window are equidistant from the east wall of the Pinakotheke (Fig. 1). The coincidence can hardly be accidental. If the position of the eastern window was thus determined by considerations of appearance from a well-defined exterior point of view, it is probable that the position of the other two openings in the wall was similarly determined by a point or points somewhere in the line of approach to the building rather than by any consideration for objects within the Pinakotheke. Such a point is readily found at the base of the Nike bastion, from which both windows and door are simultaneously visible between the columns (Fig. 2). The western window appears at the extreme left of the intercolumniation; the eastern, at the extreme right. If the observer advance from this point toward the Pinakotheke, the windows remain constantly in sight but appear to move more and more toward the middle of the intercolumniations (Fig. 3).

Along no other line outside the portico can the three openings be viewed thus simultaneously. Along the line noted, they may be viewed not only simultaneously but in such mutual relation as to give a necessarily varying yet satisfying appearance of symmetry. The facts point to two almost unavoidable inferences: first, that the line of these points determines for us the position of the last stretch of the zigzag road which led up to the Acropolis; second, that the asymmetrical placing of door and windows was due to the architect's desire that the façade should produce a complete and unified impression upon the approaching observer. This wish of the architect, further, explains the unusual depth of the portico of the Pinakotheke. As has already been stated, the position of the east window was fixed by the anta before it. Such being the case, the depth of the portico was necessarily conditioned by the visibility of the window from the bastion of the Nike temple. Had the wall been moved forward, the window would in greater or less degree have been concealed by a column, and the architect's purpose in so far defeated. In view of the unusual depth of the portico the effect of moving the wall still further back scarcely requires consideration.

Figure 1  View of the east window of the Pinakotheke showing its relation to the east anta of the portico
Figure 1
View of the east window of the Pinakotheke showing its relation to the east anta of the portico

If the last stretch of the zigzag road has been correctly determined, the next stretch below must have reached from the Nike bastion to a point below the pedestal of the monument to Agrippa. This pedestal, in turn, affords important evidence confirming the theory that such was the course of the road. The monument to Agrippa was erected in 27 B.C., that is, before the Greek way was replaced by the Roman steps in the first century A.D. (Judeich, Topographie von Athen, p. 199, note). Its peculiar orientation has never been explained, but now, in view of the preceding analysis, is easily explicable. From the bend in the road at the base of the bastion, the equestrian statue, which surmounted the high pedestal, was seen in exact profile. This is proved by a glance at the plan (Fig. 4) in which the axis of the road and the N-S axis of the pedestal converge at the base of the bastion. From the turn in the road just below the pedestal, the inscription on its west face could be easily read. But from the conjectured road which is drawn in Judeich, op. cit., Plan II, it was impossible for a person to read easily the inscription or see the equestrian group in exact profile. Thus it seems beyond question that the pedestal of the monument was oriented with reference to the ancient Greek roadway, the first clue to which is given by the peculiar arrangement of the door and windows of the Pinakotheke. The road thus determined possesses the signal advantage over the other that it permitted an impressive view through the great portal and an impressive approach to it from directly in front.

The simultaneous visibility of door and windows from the normal line of approach is a hitherto unobserved feature of Periclean building which is again happily illustrated in the closely contemporary Erechtheum. The certain restoration by Stevens (A. J. A., 1906, Pl. 9) of the east wall of this temple, shows that the door and windows were so placed as to be simultaneously visible from points in the axis of the door (Fig. 7). At a distance of about 10 m. from the stylobate, the windows appeared in the middle of the intercolumniations.[1] The level ground in front of the façade made possible an approach from straight in front. In order that the windows might be simultaneously visible, they were crowded close to the door—a fact which probably compelled the architect to use a bronze-plated door frame instead of a stone one such as he used in the north door. The former permitted longer wall blocks between the door and window than the latter would have allowed.

In the case of the Propylaea, the approach was by a zigzag road up a steep grade. The last stretch of this road was oblique to the N-S axis of the Pinakotheke. If the façade was to be viewed from that last stretch of the zigzag road, an asymmetric arrangement of door and windows was absolutely necessary. The windows and door had to be moved to the right of their normal position. The east façade of the Erechtheum and the Pinakotheke both illustrate the same law that door and windows behind a colonnade shall be simultaneously visible from before the colonnade. In the east façade of the Erechtheum, however, this law is observed in a perfectly normal arrangement; in the Pinakotheke, observance of the general law necessitated an abnormal arrangement of the openings.

Yet an insurmountable difficulty in the way of complete observance of the law lay in the necessity for considering the demands of two widely separated points of view, one in the line of approach to the Propylaea, the other within the portico. A glance at the plan of the Propylaea (Fig. 4) shows that lines drawn from the axis of the straight roadway at its lower end to the door jambs of the Pinakotheke cut two columns unequally. The line to the left side of the door is tangent to one column, the line to the right side cuts deeply into the other. If the door had been placed with reference solely to the view from the last stretch of the zigzag road, it ought to stand farther to the west. That it does not so stand must be due to the fact that the architect sought likewise to provide for the view of the observer who approached the Pinakotheke from behind the hexastyle. It is necessary to emphasize the fact that the passage back of the hexastyle was the normal means of access to the Pinakotheke. The position of the east window in the middle of its wall space would be quickly, if unconsciously felt by the observer, with the result that the asymmetry of the wall as a whole would not be noticed. Had the normal access to the wing been from directly in front, between the first and second columns (counting from the east), the fact that the windows were not equidistant from the door would have been readily recognized, but, as it is, the observer who entered the portico in the regular way at the east end saw directly in front of him a wall space pierced by a centrally placed window. If the door had been placed farther west, this advantage would have been lost.

If the zigzag approach we have indicated be correct, it follows that the Pinakotheke was designed also for an observer who stood at the beginning of the straight road through the portal, where it would have produced a unified effect with the general structure.

Figure 2  The Pinakotheke as seen from the base of the Nike bastion. At left, the pedestal of the monument to Agrippa

Figure 2Figure 3
The Pinakotheke as seen from the base of the Nike bastion.
At left, the pedestal of the monument to Agrippa
The Pinakotheke as seen from a point near the axis of the roadway
through the Propylaea


It will be readily seen that if the S.W. wing, which was never completed, had been built as an exact counterpart of the N.W. wing, the three parts would have been designed to be seen from a common point at the beginning of the straight road through the portal, and the structure though tripartite would have been a symmetrical unit. Professor Dörpfeld (Ath. Mitt., 1885, p. 45 ff.) has shown that the architect planned at one time a south-west wing with a colonnade instead of a closed west wall, and that the present curtailed wing could have been incorporated in the wing as planned, if permission had ever been given to encroach upon adjacent sanctuaries. There is, of course, no gainsaying that a colonnade was at one time projected for the west side of the wing, but does this fact in any wise exclude the possibility of a still earlier plan? The only reason given by Prof. Dörpfeld for the colonnade is that access might be had to the Nike temple. But a closed wall in place of the colonnade would not have made the temple inaccessible so long as there remained at the north-west corner of the wing the steps which afforded a far more convenient approach to the temple for those coming up to the Acropolis. Indeed, it seems quite possible that the architect, Mnesicles, originally planned a south-west wing (Stuart & Revett, The Antiquities of Athens, II, V, Pl. III) exactly like the north-west wing, but that he was compelled to give it up, that his compromise of a colonnade was also rejected, and that he had to content himself with the curtailed form in which the wing now exists, but that he so placed the back wall of the chamber that it might ultimately be incorporated in a wing with a colonnade on the west side.

There is, moreover, some reason to suspect that the architect was hostile to the idea of having a temple on the bastion. The Propylaea and the temple are obviously not features of a harmonious structural plan. The Propylaea as the crowning gateway of the acropolis demanded an unobstructed outlook toward the west. The presence of the little temple obstructs that outlook. When one learns that the senate voted the construction of the temple in, or shortly before, 446 B.C., (Ἐφ. Ἀρχ., 1897, p. 179), that is, at a time when we fairly assume that the Periclean building plans for the acropolis were about ready, he is justified in suspecting that a conservative religious party sought permanently to thwart the builders in their disregard of sanctuaries by placing a temple to Athena Nike on the bastion. That the opposition of the priesthood[2] checked completely the intention of Pericles and his architects is shown by the fact that foundations were never laid for the walls which would have stood either in the precinct of Artemis Brauronia, or in that of Athena Nike.

The most suggestive chapter in the struggle between priest and architect is the last. When the architect was forced to abandon the idea of building a colonnade, he hoped that he could extend the south wall of the wing 30 cm. west of its present position so as to align it with the third column of the north colonnade. The evidence for this is the poros blocks under the floor of the wing which project just far enough west to have supported a pavement of marble slabs terminating at the western side of the column (see the photograph in Jb. Arch. Inst., 1906, p. 139). These blocks were never intended to serve as a step, for in that case marble would have been used. Had the pavement and anta reached 30 cm. farther, a pier of necessary diameter could have been erected between the anta and the third column of the north façade, and the architrave above the pier could then have been of the same width as that of the north colonnade. But even this slight concession was denied; the western line of the wing was forced back; a unique pier had to be built and a narrow architrave placed upon it (Bohn, op. cit., Taf. XVI). Even the poros blocks where they encroached on the precinct appear to have been hacked away.

In the Propylaea itself, there survives some suggestion of the real attitude of the architect toward the Nike temple and its bastion. The crepidoma of the south-west wing terminates in an anta which was intended to stand free (Arch. Zeit., 1880, p. 86; Jb. Arch. Inst., 1906, p. 136, fig. 3): "Dass dieser Pfeiler in Form einer Anta gebildet ist, d.h. nach Nord und Süd um ein wenig vorspringt, beweist dass hier ursprünglich ein selbständiger Abschluss geplant war, genau wie an der Nordhalle." The objection of Wolters (Bonner Studien, p. 95) does not invalidate Bohn's conclusion. The former assumes that the blocks for the two corresponding antae were ordered by the architect without his specifying for which anta the several blocks were intended. Since the blocks are of different height, it seems safe to infer that the stone-cutter knew exactly the place of each. Another important fact is that the anta in question inclines 3 cm. to the west. Dörpfeld who publishes this valuable observation in Ath. Mitt., 1911, p. 55, says: "Für das Ende einer Mauer ist ein Überneigen des oberen Teiles nach aussen ganz unerhört. Wir dürfen also mit Sicherheit behaupten dass die beiden Seitenwände des Vorplatzes der Propyläen nicht beendet sind, sondern nach dem Plane des Mnesikles weiter nach Westen als Marmorwände mit mindestens je einer zweiten Ante fortgeführt werden sollten. Im Süden sollten die beiden Parastaden augenscheinlich die Treppe zum Nike-Tempel einfassen, im Norden sollten sie vermutlich eine Tür bilden, die zu dem westlich von der Pinakothek befindlichen tief liegenden Raume führte."

The inference from Professor Dörpfeld's important observation is that the anta was intended to carry a lintel or an architrave reaching west. The question is just how much of the bastion was to be removed to make room for this extension. The readiness of the architect to encroach upon the precinct of the temple warrants the answer that the whole bastion was to be removed. The anta, as Bohn says, was built to stand free like its counterpart at the N.W. wing. The character of the extension remains a matter of conjecture. Perhaps a colonnade was contemplated.

But if this is true, the question arises how does it happen that the bastion of the temple, which certainly antedates the Propylaea, has a north wall aligned with that of the S.W. wing of the Propylaea. The coincidence must be the result of deliberate plan and is best explained by the supposition that when the bastion was built, the ground plan of the Propylaea and its position were already known. The north wall of the bastion could therefore be built in line with that of the wing. The continuation of the north wall of the bastion was broken away when work on the Propylaea was begun.

Neither Pericles nor Mnesicles gave consent to the erection of the Temple of Wingless Victory. In the leaning anta which was built to stand free one reads their buried hope that the Propylaea might enjoy a finely impressive command of the whole region west of the acropolis, a command unannoyed by the hostile lines of the structurally insignificant temple of Victory.

Figure 4  Plan of the Propylaea showing the zigzag road, the conjectured road (in dotted lines), and the original form of the S.W. wing
Figure 4
Plan of the Propylaea showing the zigzag road, the conjectured road (in dotted lines), and the original form of the S.W. wing

II

THE CARYATID PORCH OF THE ERECHTHEUM

Not the least remarkable feature of the Erechtheum is the Caryatid Porch, which is generally regarded as a creation of the artist's fancy and of no further significance. In the present study an attempt will be made to prove that the maidens serve not only a structural and artistic purpose, but that they also bear a relation in thought to the cult of the temple, notwithstanding the fact that the female figure had been employed by earlier architects merely as a support. If the subject of the frieze of the Erechtheum, like that of the approximately contemporary Parthenon, was appropriately drawn from the life and worship of the gods of the temple, it is possible that the sculptured maidens of the unique Caryatid Porch also bear a logical relation to the cult of the temple.

In the first place it may be observed that the entrance to the Erechtheum at the Caryatid Porch corresponds in position closely to the south entrance of the Pre-Persian Erechtheum. The archaic pedimental sculpture of poros which is now in the Acropolis Museum (Wiegand, Porosarchitektur der Akropolis zu Athen, Taf. 14; Petersen, Die Burgtempel der Athenaia, p. 22, abb. 2) gives us a view of the early temple as seen from the south. Close to the west side of the temple, the sacred olive of Athena appears above a low wall, just as in a later period, it stood close to the west façade of the Erechtheum and appeared above the south wall of the Pandroseum. A precinct wall ran west from the south-west corner of both the earlier and later Erechtheum. Along this wall in the pedimental sculpture figures are passing toward the temple. They have come from the direction of the Propylaea. A procession moving from the Propylaea to the Caryatid Porch had exactly the background of the sculptured figures. The correspondence is complete when one notes that these figures are moving toward an entrance which answers to the later Caryatid Porch.

A further point of value is that the female figures in the procession carried something on their heads, as is shown by their raised but broken left arms. The position of the larger one which was intended to be seen in front view is not certain because it was not attached to the wall like the smaller female figure. It stood probably in the portico and may have served as a Caryatid. Petersen (op. cit., p. 27) thinks these figures represent Arrephoroi rather than Canephoroi and his opinion is very reasonable. The Arrephoroi annually carried some mysterious object on their heads to the temple of Athena and Erechtheus.

The procession including Arrephoroi moving toward an entrance which was the predecessor of the Caryatid Porch suggests an explanation of the fact that the latter porch was not for common use. A restricted use of the Caryatid Porch is a certain inference from the following facts. The opening at the north-east corner of the porch is narrow and the step up to it is twenty inches. If this means of access to the temple had been used by the public, the step would have been lower and convenient. Again, the delicate base mouldings of the building which run under this opening would have been worn if the opening had been frequently used (Frazer, Pausanias, II, p. 337). Frazer's conclusion is that the entrance was reserved for priests.

This entrance like its predecessor was perhaps used by the Arrephoroi. If it was the entrance especially reserved for them, then the Caryatids may very appropriately be regarded as statues of Arrephoroi. They adorn their own porch. To such an identification the objection may be made that the Caryatids are fully developed forms whereas the Arrephoroi were girls between the ages of seven and eleven (Bekker, Anecdota Graeca, I. p. 202, s. v. ἀρρηφορεῖν) but a structural necessity for heavier, fuller forms justified the license of the architect. The Caryatids are called κόραι in the building inscriptions.[3]

Figure 5  Procession of Arrephoroi. A scene on an archaic amphora
Figure 5
Procession of Arrephoroi. A scene on an archaic amphora

The interpretation of the Caryatids as Arrephoroi is confirmed by a scene (Fig. 5)[4] on an archaic amphora which also makes possible a better understanding of the Porch as a whole. The amphora which is now in the Museum of Fine Arts at Boston is published by De Ridder in B. C. H., 1898, p. 467 and pl. VI, and by Caskey in Museum of Fine Arts Bulletin, Vol. VII (1909), No. 38. In the scene on the neck of this amphora appears a priestess followed by four maidens who bear upon their heads a long chest. De Ridder compares the four maidens with the Athenian Canephoroi. Certain suggestive points may be noted. The maidens are four in number. Ancient writers with the exception of Pausanias tell us that there were four Arrephoroi at Athens.[5] The front of the Caryatid Porch consists of four. Nor do comparisons stop here. The architrave which the Caryatids (Arrephoroi) carry may be compared with the long chest which the maidens bear on their heads, and the discs on the architrave with the discs which ornament the chest. The discs on the architrave are usually explained as a substitute for a frieze, but the logic of such substitution is quite unclear. They are simply the ornaments which decorated the mysterious burden of the Arrephoroi.

The ceremony in the course of which the Arrephoroi carried the chest may have had to do with a cult of the heroized dead. Tradition has it that Erechtheus who was closely associated with Athena was buried in the Erechtheum. The discs on the box and on the dress of the bearers suggest those which were found in such numbers in the Mycenaean shaft-graves.[6] But whatever the character of the ceremony, it had to do with the cult which was housed in the Erechtheum.

The amphora just referred to is a Boeotian fabric, but that fact does not nullify the importance of its bearing upon the problem in hand. The Boeotian potter may have appropriated the scene from an Athenian source. The comparative study of this amphora, the archaic pedimental sculpture and the Caryatid Porch seem to justify the following conclusions. The Caryatid Porch is a bold translation into marble of the Arrephoroi and the disc-covered chest they carried upon their heads to the joint temple of Athena and Erechtheus. The maidens are a particularly appropriate adornment of the porch which was reserved for their living prototypes. The corresponding entrance of the Pre-Persian joint temple was also used by the Arrephoroi and may have had Caryatids in place of columns. If so the later temple reproduced a feature of the earlier temple just as the equally unique sculptured drums of the earlier Artemisium at Ephesus were reproduced in its successor. In a word the Caryatid Porch is not an arbitrary creation but is related in thought to the cult of the temple.

III

THE ERECHTHEUM AS BUILT

The present plan of the interior of the Erechtheum offers a number of difficulties. Those of a general character may be considered first. Within the cellae of Greek temples, the interior cross-wall is regularly at right angles to the axis of the main entrance and not parallel to that axis as in the west cella of the Erechtheum. The accepted plan of the cella compels an orientation east and west instead of north and south for its two chambers. The want of harmony in the proportions of the western chamber and the porch which admits to it is hardly to be expected of an architect of the fifth century. He might perhaps be justified by the theory that he labored under restrictions imposed by a complication of cults were it not for the fact that the contemporary architect of the Propylaea planned without regard to sanctuaries (cf. Furtwängler, Sitzb. Münch. Akad., 1904, 375). The feeling which the north porch creates is that it was intended to be the entrance to an interior of larger dimensions than those of the present plan.

Difficulties of a specific nature are encountered when one endeavors to find in the plan certain details of the Chandler inscription (I. G., I, 322). A satisfactory parastas cannot be located. It was an interior wall of some sort. The word προστομιαῖον the official name of one of the chambers in the west cella has been derived from προστόμιον which is conjectured to have been the curb about the sacred well (Petersen, Die Burgtempel der Athenaia, p. 101). But one naturally asks why the room of the sacred well was not named from στόμιον. The φρέαρ (στόμιον) was the important object of cult in the room. It is the θάλασσα which is mentioned by Herodotus, and the φρέαρ by Pausanias, while nothing is heard about a well-curb. The natural interpretation of προστομιαῖον is the room in front of (πρό) the * στομιαῖον, i.e., the room of the στόμιον. Now the derivation of * στομιαῖον (which does not, to be sure, occur in extant records of the temple) from στόμιον is as simple as that of Πανδροσεῖον from Πάνδροσος. It is the entirely problematical προστόμιον which renders improbable the derivation from it of προστομιαῖον.

There is another possible source of difficulty to be noticed. The inscription mentions four doors, 8¼ x 2½ feet, for which there is no place in the outside walls. These then must have been placed in the interior walls. According to the present plan which shows a closed wall between the shrines of Athena and Erechtheus these two double-doors must have been in the western cross-wall where they could hardly have admitted to a single room (Fowler and Wheeler, Greek Archaeology, p. 148, fig. 115). This obliges us to suppose a division of the middle chamber into two parts and thereby presents a difficulty to those who believe that the word διπλοῦν in the description of Pausanias refers to the entire western part of the Erechtheum. For the western cella would then consist of three instead of two chambers.

Further difficulties of a serious nature are encountered when one attempts to fit the text of Pausanias to the present plan of the whole building (cf. Michaelis, Jb. Arch. Inst., 1902, p. 16 ff). This is what scholars have sought to do with very different and unsatisfactory results, so unsatisfactory that of late there is a tendency on the part of some to deny that any value is to be placed upon the sequence which Pausanias observes in his narrative. Those who believe that the description is something more than a loose statement of the contents of the temple are said to be making assumptions. But the description, taken by itself, seems to be a systematic account, and the burden of proof rests upon those who deny it. The denial is based upon the failure of the account to square with the accepted plan of the interior of the Erechtheum, but such basis is insecure because the interior of the temple has been so completely destroyed as not to permit an absolutely certain restoration by means of the evidence of the building alone. There is no sure warrant for saying in the case of this description that Pausanias has confused his notes.

The traveler has been made to enter the Erechtheum through three different doors. His account, however, is simple and ought not to occasion difficulty. It suggests orderly progression. Before the entrance he found the altar of Zeus; on entering, three altars and the paintings of the Butadae; then in an inner (ἔνδον) room the well and trident-mark; thereafter follows the account of the objects in the cella of Athena. Then he passed to the Pandroseum. The order in this description is simple and natural, and the moment the theory is advanced of a postponement of certain objects for mention later in other connections, that moment the description ceases to be of value so far as the interior arrangement of the Erechtheum is concerned and the way is opened up to the disposition of the contents of the temple in accord with individual choice. The simplicity and naturalness of the description is the best guarantee of an orderly progression by Pausanias, and the only guide where the evidence of the building is insufficient.

In his simple, straightforward account, Pausanias gives not the slightest indication that he left the Erechtheum until he entered the Pandroseum. The present plan of the temple in which east and west cella are separated by a closed wall, compels that assumption. Further, if Pausanias coming from the east entered the Erechtheum by the east door, one is compelled to place in the cella of Athena the altar of Poseidon-Erechtheus and the paintings of the Butadae, which did not demand a cella with an orientation east, and then to place the contents of the ναὸς τῆς Ἀθηνᾶς including the xoanon in the western cella where they certainly did not belong; or else with Dörpfeld move the museum into the shadowy old Hekatompedon, thus depriving the goddess of all share in the Erechtheum except that the temple was named after her oldest image in the official inscription of the fifth century.

But neglecting for the moment the objection that Pausanias gives no indication of having left the Erechtheum until he passed to the ναὸς Πανδρόσου, and granting besides that the old Hekatompedon was still standing, one quickly asks why Pausanias, who took things in order, passed by that temple when he approached from the east. Why did he not visit the cellae which lay at the higher level and then proceed to that at a lower level in the west part of the Erechtheum? The fact that the old temple stood a few paces farther west than the Erechtheum does not help one out of the difficulty. The simple and convenient order would have been: Hekatompedon, Erechtheum, temple or temenos of Pandrosus. But instead one has the unintelligible order illustrated in A. J. A., III (1899), p. 368.

If, however, the majority of scholars are right in their belief that Pausanias entered first the west cella of the Erechtheum, then according to the present plan neither the well nor the trident-mark were ἔνδον because the former is placed in the room which is entered directly from the north and south porches (Michaelis, Jb. Arch. Inst., 1902, p. 16). Furtwängler (Masterpieces, p. 435) takes refuge in the theory that Pausanias, immediately after mentioning the altar of Zeus Hypatus before the entrance, adds the three others within the cella in order to get one of his favorite antitheses. The result is hopeless confusion. The three altars which Pausanias mentions as being in the first chamber, Furtwängler distributes in two chambers, neither of which is entered directly from either north or south porch, while in the first chamber Cecrops is established whom Pausanias does not mention. An attempt, which must be characterized as violent, has been made to fit the description of the traveller to the plan of the cella by the assumption (Frazer, Paus., II, 336) that both well and trident-mark were apparently reached from the inner chamber, a sight of the well being afforded to the curious through an opening at the foot of the staircase which led down from the inner chamber into the crypt (cf. Furtwängler, Sitzb. Mün. Akad., 1904, p. 372). But why make Pausanias descend a stairway, for which there is no evidence, to look at indentations in the rock which could be seen from the Porch? Frazer's reason that the passage through the foundation and beneath the floor was for those who wished to examine the indentations closely is exceedingly poor. One can examine the marks from the porch without crawling through the passage, the height of which (1.22 m.) shows that it was not intended to be an ordinary approach, as Michaelis (op. cit., p. 19) rightly observes. Petersen's explanation (op. cit., p. 102) that Pausanias postponed the mention of the trident-mark until he saw the φρέαρ inside the temple is simply another arbitrary violation of a clear statement by the traveler which gives every indication of orderly natural progression.

Notice must be taken at this point of the hole through the floor of the porch close to the wall and at the left of the door. This hole opens into the passage. Nilson (J.H.S., 1901, p. 328) accepts the assertion made in the Πρακτικὰ τῆς ἐπὶ τοῦ Ἐρεχθείου Ἐπιτροπῆς (1853) § 25 that the hole is modern, but since there is not the slightest trace of a scar made by a chisel on the surface of the adjacent block, it is certain that the hole was cut before the slab was set in place, i.e. it is part of the underground system at this place, but no attempt has been made to explain it.

Yet another difficulty is found in the words διπλοῦν γάρ ἐστιν τὸ οἴκημα. After mentioning the altars and paintings in the first room, Pausanias passes to the second with the observation that the οἴκημα is double, to find there (ἔνδον) a well and the marks (σῆμα or σχῆμα) of the trident. In other passages in which Pausanias describes double buildings the natural interpretation is that the first chamber is in front, the front determined by the entrance of the second, because cross-walls in cellae are normally at right angles to the major axis. The north porch at once determines that axis in the west cella of the Erechtheum. In Paus. VI, 20. 3, the first chamber is noted with the words ἐν τῷ ἔμπροσθεν, the second with ἐν τῷ ἐντός. According to the present plan the chambers of the οἴκημα Ἐρεχθείου are one in front of the other for a person only, who enters by the small door in the west wall. For one entering by either of the other doors, the chambers are side by side.

A common objection to all theories about the Erechtheum is that they attribute an unintelligible order to the course taken by Pausanias. Those who think he entered the building by the north porch or the porch of the maidens are compelled to believe that he passed by an eastern entrance only to retrace his steps upstairs and enter later the cella of Athena, and that he then descended again to visit the Pandroseum. Those who believe that Pausanias saw the xoanon of Athena in the Hekatompedon are also compelled to make Pausanias double on his course and furthermore to strain the meaning of συνεχής. The Pandroseum, in which the ναὸς Πανδρόσου must have stood is in close connection with the Erechtheum, and not with the terrace of the Hekatompedon which lay higher and was separated still more by a wall which ran west from the porch of the maidens on the foundation for the peristyle of the old temple. Those who believe that a staircase connected the eastern with the lower western cella of the Erechtheum are at a loss to say why Pausanias did not enter the eastern shrine first, and after describing its contents descend to the western and lower cella, and then proceed to the Pandroseum. In short, the present plan of the Erechtheum will agree with the description of Pausanias cum mula peperit.

The difficulties of the present plan both in the light of the Chandler inscription and the description by Pausanias induce one to believe that the interior of the Erechtheum has been wrongly restored and must therefore be reëxamined.

A Roman foundation has obscured the truth in the temple, namely the foundation which is said to have supported the western of the two interior walls. This foundation, however, lies exactly below the heavy blocks which were inserted by the Romans as the epistyle of a row of piers or columns to support the roof and which served as the successor of the καμπύλη σελίς of Greek times (A. J. A., 1910, p. 291). The weathering on the north wall helps to establish the relation of the foundation to the inserted blocks. This foundation was later used for the wall of the narthex of the church into which the Erechtheum was converted, perhaps as early as the fifth century. The traces of the Greek walls, just east of the north and south doors, show however that, if they belong to a Greek wall which stood on the present foundation, that wall rested not squarely on the foundation but on the eastern side of it. The certain conclusion from these facts is that the foundation was not laid for the Greek wall, whatever the character of the latter may have been. The size of the inserted blocks proves that the Roman work was heavy and demanded a heavy foundation such as exists reaching down to the rock. The traces of the Greek wall however show that it reached up five courses above the orthostates while the presence of the καμπύλη σελίς above proves that this low wall was only a screen-wall and supported nothing. That the foundation is Roman is confirmed on examination of its character which presents a remarkable contrast with the Greek foundation of the west wall of the building. The bed for the Roman foundation was not carefully prepared; just south of the centre the unevenness of the underlying rock is distinctly noticeable. Quite different is the character of the Greek foundation. The rock was carefully cut to receive it. The courses are evenly laid, the interstices between the blocks small. Neither remark applies to the Roman foundation which is the poorest in the building. Finally, this foundation does not key into those for the north and south walls (Fig. 6). The south foundation appears to key into that for the interior wall, but on examination it will be seen that the poros block in question has been cut back by those who enlarged the cistern. This block originally projected in as far as the poros blocks in the same course but east of the interior wall. If the interior foundation had keyed into the foundations of the outside walls its Greek character would have been beyond question.

Figure 6  View of N. end of W. interior foundation showing that it does not key into the foundation of the N. wall
Figure 6
View of N. end of W. interior foundation showing that it does not key into the foundation of the N. wall

Figure 7 Plan of Erechtheum showing new interior arrangement. Dotted lines from A show simultaneous visibility of windows from the axis of the door
Figure 7
Plan of Erechtheum showing new interior arrangement. Dotted lines from A show simultaneous visibility of windows from the axis of the door

The western cella of the Erechtheum was in all probability divided into two chambers by a wall running east and west (Fig. 7). The chief evidence in the building for this is that the west door of the Erechtheum does not stand in the middle of the wall, a peculiarity often remarked (Penrose, The Principles of Athenian Architecture, p. 88). The unusual position of a door under a column is structurally objectionable (Michaelis, Jb. Arch. Inst., 1902, p. 18). Had the door been placed in the middle, it would have stood directly under the central intercolumination of the west colonnade. The latest theory (D'Ooge, The Acropolis of Athens, p. 201) is that the position of the door was determined by the structure which abutted against the west wall just south of the door. The presence of an adjoining structure is then to be credited with some magic power of attraction which drew the door from its normal position into one structurally objectionable. The unsymmetrical position of the door was doubtless determined by the interior cross-wall which stood just north of the door and divided the west cella into a north and south chamber of approximately the same size. The door connecting the two very probably lay in the axis of the north and south doors of the temple (Fig. 7), thus very near to the west wall. The distance of the top course which could not have reached above the lintel of the west door was 8¼ feet above the bottom of the orthostates of the west wall. The height of the doors mentioned in the Chandler inscription is 8¼ feet. Of this cross-wall there are no traces of contact with the west wall. It must be noted, however, that the surface of the west wall is at that place badly broken away (Fig. 8). The surface of the orthostate is in part well preserved but orthostates at the place of contact with interior walls have nowhere left any indication of such contact—no anathyrosis. This is especially peculiar in the case of the eastern cross-wall where the supposed higher level on the east side would lead one to expect a careful joining with anathyrosis (Fig. 9). Had the north wall been destroyed beyond recovery down to this orthostate, there would have been no evidence now to show that a cross-wall ever was in contact with it. The orthostate next the door in the west wall cannot be cited as evidence against the existence of an interior cross-wall running east and west. The blocks above this orthostate are badly broken away except one just below the lintel which has some original surface preserved. The lintel like the orthostate is a block two courses high and may have the same exemption from any signs of contact, as far as the surface is concerned, with the interior of the wall. It is possible that not a single course of the cross-wall keyed into the west wall because the former was merely a low partition-wall. The top of the lintel in the line of the wall is broken away so that there, as in the case of the blocks below, no evidence of clamps can be expected. Neglecting for a moment the remarkable position of the door, it may be said that the interior surface of the west wall just north of the door is in no condition to give definite evidence pro or con of the existence of this interior cross-wall. The conclusive answer must be found in the simple description of Pausanias to whose text one may now turn (I, 26, 5). The new plan fits perfectly.

Figure 8  View of the N. side of the door in the W. wall
Figure 8
View of the N. side of the door in the W. wall

In the first room (ἐσελθοῦσι) Pausanias found the altars of Hephaestus, Poseidon-Erechtheus and Butes, and the paintings of the Butadae. The wall space lighted directly from the west windows was finely adapted for the paintings. There were only two doors and those at the west ends of the long walls. There could have been an uninterrupted series of paintings, whereas the προστομιαῖον of the other plan had five doors, and therefore offered less desirable space. With the words διπλοῦν γάρ ἐστιν τὸ οἴκημα, Pausanias passes to the next room (ἔνδον) where he found the well of sea-water. Now the name with which Pausanias introduces his description is significant: ἔστι δὲ καὶ οἴκημα Ἐρέχθειον καλούμενον. He named the temple from the part which he entered first and then he says a moment later that this οἴκημα is double, i.e. the part which he has just entered. Up to this point there is no suggestion of Athena. The διπλοῦν οἴκημα of Erechtheus consisted of two chambers one behind the other with reference to the porch.

The φρέαρ in the new plan is in the inner (ἔνδον) room of the οἴκημα near the west wall of the temple, where water was accumulated in later times and probably therefore in Greek and Roman times, while there is no indication whatever of a well of any sort in the inner chamber according to the old plan. At present the cistern in the western part of the temple reaches from north door to south door, but there is evidence to show that originally in Greek times it did not extend so far north. Just inside the north door, the pavement consisted of thin slabs, 0.13 m. thick, which ran in under the heavy blocks below the orthostates of the west wall and fitted into a cutting in the topmost course of the poros foundation. The thinness of the pavement is inconsistent with the theory of a hollow vault of any sort beneath the floor. There must have been a filling of earth for the pavement to rest on. This confirms the theory that the originally smaller place for the accumulation of water within the building was the south-west corner. The drain at the south-west corner of the North Porch which brought water from the direction of the Caryatid Porch both before and after the present Erechtheum was built may have carried excess water from the φρέαρ. It is possible that the absence of a proper foundation beneath the threshold of the door in the Caryatid Porch was due to the presence there of a course or courses of stone which surrounded the well and trident-mark. The architect, unable to secure consent to their removal, was compelled to build upon them and to raise the door. He placed the threshold above the bottom of the orthostates, and the position of this threshold may have determined the high position of the orthostates of the western wall. Both are placed at the same level.

In the inner room Pausanias saw the trident-mark, naturally near the φρέαρ. The first produced the second, according to Apollodorus, III, 14, 2. Pausanias did not see them πρὸ τῆς ἐσόδου but ἔνδον. There is no authority whatever for identifying the marks in the rock beneath the north porch with those made by the trident of Poseidon, except common consent in recent times. If the trident-mark lay within the Erechtheum what deity made that outside, and beneath the porch, a mark which was beyond question an object of cult? "Die Stelle welche Zeus mit seinem Blitze getroffen hatte, wurde mit einem Puteal umgeben und blieb unter freiem Himmel" (Dörpfeld, Ath. Mitt., 1903, p. 467). An altar of Zeus Hypatus stood before the entrance. The coincidence of place πρὸ τῆς ἐσόδου and ἐν τῇ προστάσει τῇ πρὸς τοῦ θυρώματος where, according to the official inscription the altar of the Thyechous stood, outweighs any objection to the identification of the two altars based on difference of name in the two records, ὁ βωμὸς τοῦ θυηχοῦ and Διὸς βωμὸς Ὑπάτου. Pausanias departs from the official terminology of building inscriptions. The rotunda at Epidaurus was called in the building inscription θυμέλη (cf. Cavvadias, Τὸ Ἱερὸν τοῦ Ἀσκληπιοῦ ἐν Ἐπιδαύρῳ, p. 50). Pausanias called it θόλος. The official name for the Erechtheum does not occur in literature nor in inscriptions except in the report of the commissioners. It is not surprising then if Pausanias failed to call the altar ὁ βωμὸς τοῦ θυηχοῦ. This name gives not the slightest clue to the god to whom it was erected. The suggestion of Michaelis (Jb. Arch. Inst., 1902, p. 17) that the altar may have been one to Poseidon proceeds from the logical idea to make it that of the god who is thought to have made the marks in the rock beneath the porch.

Figure 9  Looking north in the line of the eastern interior cross-wall. A view showing the orthostate which was in contact with the interior wall and the rough surface (X) of the native rock in the line of the latter
Figure 9
Looking north in the line of the eastern interior cross-wall. A view showing the orthostate which was in contact with the interior wall and the rough surface (X) of the native rock in the line of the latter

The altar in the north porch was one to Zeus and its presence there suggests the reasonable theory that the marks in the rock below it and the square hole in the roof above are a memorial of the thunderbolt which he hurled at Erechtheus according to Hyginus (Fab., 46). Cf. Petersen, op. cit., p. 72. One cannot say which is the earlier tradition, that preserved in Hyginus or that in Euripides (Ion, 281) according to which πληγαὶ τριαίνης thrust Erechtheus into a χάσμα χθονός (Furtwängler, Masterpieces, p. 436, note 3). There was a tradition that Zeus, at the request of Poseidon, killed Erechtheus with a thunderbolt, a tradition which becomes the more interesting in the light of an inscription found on the Acropolis (Lolling, Δελ. Ἀρχ., 1890, p. 144) which proves that an ἄβατον Διὸς Καταιβάτου existed there. The stone bearing the inscription was found in a mediaeval wall north of the northeast corner of the Parthenon. Three surfaces of the fragment are preserved showing that it came from a corner perhaps of a low wall enclosing the ἄβατον. One side of the block which is Pentelic marble is finely polished. There are no dowel or clamp-holes preserved and it is impossible to recover the dimensions of the original block. The face which bears the inscription of the late fourth century seems to have been redressed, since chisel marks are evident. The inscription may then have been recut. It is tentatively suggested that this fragment was part of the curb about the opening in the floor of the north porch.

Zeus hurled a thunderbolt which destroyed the chamber of Semele at Thebes and the place was an ἄβατον in the time of Pausanias (IX, 12, 4). When Zeus struck Erechtheus with a thunderbolt, the spot on the Acropolis where the lightning struck may likewise have become an ἄβατον. It is interesting to note that at Olympia, Pausanias (V, 14, 7) saw the foundations of the house of Oenomaus and two altars, one to Zeus Herkeios which Oenomaus seems to have built, the other to Zeus Keraunos erected later, after the thunderbolt had destroyed the house. The persons and palaces of mythical kings appear to have been a favorite mark for the thunderbolt of Zeus. The tradition preserved in Hyginus is an illustration, and tempts one to seek in the vicinity of the Erechtheum for some record of the thunderbolt.

And so too does the notice of the scholiast (after Apollodorus) on Sophocles, Oed. Col., 705, who says that near the Academy there was an altar to Zeus Kataibates who was also called Morios: ἐστὶν ὅ τε τοῦ καταιβάτου Διὸς βωμὸς ὃν καὶ Μόριον καλοῦσιν τῶν ἐκεῖ μοριῶν παρὰ τὸ τῆς Ἀθηνᾶς ἱερὸν ἱδρυμένων. That Zeus Kataibates should have been called Μόριος (μορία) points to some relation with Athena and the olive which may have had its origin on the Acropolis. Does this double name simply mean that Zeus "of sleepless eye" used lightning (καταιβάτης) to avenge sacrilege which one committed when he violated a sacred olive (μορία) as Miss Harrison, Mythology and Monuments of Ancient Athens, p. 599, suggests, or is the key to the explanation furnished by a passage in Pausanias (IX, 12, 4)? Pausanias records the tradition that at the time Zeus hurled the thunderbolt which destroyed Semele and her bridal chamber a log fell from heaven which Polydorus adorned with bronze and called Dionysus Cadmus. Perhaps the ancient image of Athena, the xoanon of olive wood, which fell from heaven, fell at the time Zeus smote Erechtheus, just as the wooden image of Dionysus Cadmus fell when Zeus destroyed Semele. If so, then Zeus Kataibates, by bringing to earth a piece of sacred olive (μορία) very naturally acquired the name Zeus Morios.

What known altar to Zeus in the vicinity of the Erechtheum could have been erected to him in his capacity as καταιβάτης? There was an altar of Zeus Herkeios under the olive in the Pandroseum. This, however, cannot have served as an altar of Zeus Kataibates because these were two distinct phases of the Zeus cult. Pausanias found near the ruins of the palace of Oenomaus at Olympia an altar to Zeus Herkeios and another to Zeus Keraunos (Kataibates). Before the entrance to the Erechtheum Pausanias found an altar to Zeus Hypatus beside the sacred indentations in the rock which lay beneath an opening in the roof, and this is none other than the altar to Zeus Kataibates.

The passage which led from these indentations through the foundation into the temple was not intended for the worshipper but for the priest on occasion. Herein lies a possible explanation of the hole which opens into the passage close to the wall east of the main door. It was perhaps a sort of speaking tube for subterranean utterances. Perhaps beneath the floor of the temple the chthonic Erechtheus was invoked and priestly response heard from above through the opening.

The trident-mark and the well, both destroyed when the mediaeval cistern was cut, were situated in the southwest part of the Erechtheum. Thus evidences produced by Poseidon in the dispute over the land were close to the olive tree of Athena which stood in the Pandroseum. The door in the west wall gave ready access from one to the other.

It has already been remarked that in the description of the Erechtheum, Pausanias gives no indication between the words ἐσελθοῦσιν (I, 26, 5) and συνεχής (I, 27, 2) that he left the building to enter a temple of Athena. The reference to the well and the trident-mark is followed by a compound sentence, the first member (μέν) of which prepares the way for the more important second member (δέ) which tells of the ἁγιώτατον ... Ἀθηνᾶς ἄγαλμα. There is no break here in the continuity of the account and no disturbance of an orderly advance if Pausanias found a means of communication between the inner chamber of the διπλοῦν οἴκημα and the ναὸς τῆς Ἀθηνᾶς. Now the traditional intimacy of Athena and Erechtheus would lead one to expect such communication and thus the cella of Athena which gave the official name to the temple would have a share in the magnificent north portal, the main entrance to the building. The attempts to raise the eastern portico to the dignity of the πρόστασις ἡ πρὸς τοῦ θυρώματος are unsatisfactory. Thus Penrose (op. cit., p. 95): "It may seem a difficulty to explain why the most magnificent portico should lead to a subordinate shrine, but the eastern portico with its six columns, although of smaller diameter, was scarcely if at all of less importance, and the doorway could not have been much inferior in width and height.... The difference of level also obviously gives preëminence to the eastern site." These considerations neither qualify the difficulty nor do they lessen the preëminent magnificence of the north porch. Apart from the demands of the text of Pausanias, there is another point to be observed. From the north porch there was a doorway opening into the Pandroseum. Thus the north porch gave admission to a temenos, but not according to present theory to the eastern cella of Athena.

In the inner chamber where Pausanias saw the well, he must have found a door, the second of the two mentioned in the Chandler inscription, which opened into the eastern cella (Fig. 7). When he had seen the objects there, he retraced his steps past the well and the mark of the trident, and entered by the small door in the west wall, the Pandroseum, where stood a temple which was συνεχὴς τῷ ναῷ τῆς Ἀθηνᾶς. That Pausanias on approaching the Erechtheum should call it Ἐρέχθειον and then on leaving should call it ναὸς τῆς Ἀθηνᾶς is not only quite in keeping with that stylistic tendency which Robert has termed oratio variata (Pausanias als Schriftsteller s.v.) but has a simple and natural explanation. The first name for the temple was that of the western part which he entered first and found to be double; the last name was that of the eastern part which he visited last. The name for the whole was determined by that part which was most prominently in his thought at the time. He gives not the slightest hint that Athena had any share in the temple until he has described the contents of the διπλοῦν οἴκημα. Properly speaking the western part of the building was the Erechtheum, and the eastern, the temple of Athena; but the name of either half spread to the whole, a natural tendency which gave the Parthenon its name, and readily intelligible in the case of the Erechtheum in view of the traditional intimacy of the two divinities recorded in Homer. When Pausanias speaks of the tholos at Epidaurus a second time, he does not call it by that name, but οἴκημα περιφερές. As for the dog of Philochorus, one may believe simply that the creature passed through the Erechtheum proper into the Pandroseum (Petersen, op. cit., p. 143).

The theory was at one time put forward that a staircase afforded communication between the western cella and the higher eastern cella, but several considerations establish the fact that they had a common level. The conclusive argument is that there are no cuttings in the rock for the cross-wall between the two cellae, although that rock lay only 1-1.50 m. below the base of the wall. In its rough and sloping surfaces (Fig. 9) there is not a single trace of a bed for a foundation which the supposed heavy cross-wall would demand. The rock betrays no evidences whatever of preparation to receive a foundation. The contention that points of rock were broken off is absurd. The foundations for the outside walls go down to and rest in such beds, that of the west wall being an illustration. Those who believe that the heavy cross-wall supported roof beams besides serving as a terrace wall for the western cella 3 m. lower than the eastern, seem not to have thought that such a wall would need a well cut bed in the rock. Now the east wall, the thinnest in the building, has a foundation which, though it consists of eight courses of heavy poros blocks, rests in deep cuttings in the rock. Under one block of the lowest course, lies a smaller block of poros which also rests in deep cuttings in the rock. Why did not the eastern interior cross-wall likewise have a bed for it cut in the rock, especially since its foundation was so shallow, only two or three courses of poros, and not eight as in the case of the eastern wall? The only bit of outside wall which does not rest in cuttings in the rock is that at the southwest corner, but there the few courses below the lintel of the door rested on an object of cult of some sort which made impossible the normal foundation, while the weight above the lintel rested on the heavy block in the west wall and the firmly founded wall just east of the door.

The champions of the accepted plan of the Erechtheum must explain a striking inconsistency in construction presented by the two interior cross-walls. The western, a screen-wall (D'Ooge, The Acropolis of Athens, p. 202) which reached only five courses above the orthostates and supported no other weight whatever, had a foundation which rests partly in cuttings in the rock, while the eastern interior wall which reached quite to the ceiling, supported the weight of it, besides being of the nature of a terrace wall, had a foundation which rested only on the rough and sloping rock. How is this inconsistency to be explained?

The inconsistency cannot be avoided. The logical inference from the facts is one which makes Pausanias intelligible. The eastern cross-wall could not have reached to the ceiling except at the ends where the blocks keyed into the side-walls and shared their foundations. The inference that this wall for its entire length must have been as high as the traces on the side walls is altogether unnecessary. Except at the ends this wall was as high as the other partition-wall, and like it supported no weight. The pilasters lessened a span of thirty feet by perhaps two feet and with the outside walls served to support a heavy cross-beam. Wall-pilasters are not unknown in Greek architecture as the temples of Apollo at Bassae and the Heraeum at Olympia prove (Frazer, op. cit., III, p. 589).

Pausanias walked into the cella of Athena from that of Erechtheus without ascending a step. Since all the interior chambers of the Erechtheum had the same level as the north portal it is unnecessary to maintain that he should have entered the Athena cella first on coming from the east. In perfect keeping with the new plan of the interior is the simple sequence of the topographical indications in his description: (1) πρὸ τῆς ἐσόδου, (2) ἐσελθοῦσιν, (3) ἔνδον (διπλοῦν γάρ ἐστιν τὸ οἴκημα), (4) ἁγιώτατον ἄγαλμα (cf. ὁ νεὼς ἐν ᾧ τὸ ἀρχαῖον ἄγαλμα), (5) τῷ ναῷ δὲ τῆς Ἀθηνᾶς Πανδρόσου ναὸς συνεχής.

But what of the protruding poros foundations of the east and south walls and of the unfinished surface of the north wall which have always readily confirmed the theory of a higher level for the cella of Athena? Certainly these were not visible. They must have been concealed behind marble shelves on north and south and marble shelves and steps on the east (Fig. 7). The builders of the Erechtheum were economical, using the foundations of the peristyle of the Hekatompedon as far as possible and then adding blocks of poros to complete a foundation for the south wall of their temple. There was no more need for a wall of marble behind the south shelf than there was for a marble floor beneath the pedestal of the statue in the Parthenon. These shelves were convenient for the exhibition of the many objects deposited in the cella which was a religious museum. The surface of the marble walls is not preserved to a sufficient height to show whether there was any trace of contact with the top of the shelf, just as they can give no positive evidence of a floor at the higher level.

A peculiar cutting in the orthostate at the south-east corner of the temple should be noted in this connection. The cutting is in the interior angle and is so made that the orthostate could be set at this place on a horizontal surface which ran inward. Was this horizontal surface the floor level? Was the floor of the eastern cella raised one step above the threshold as D'Ooge says (op. cit., p. 207)? This is unlikely because the floor level would then have been above the base of the orthostates. The horizontal surface was the top of the shelf, for its vertical plane would have courses of the same height as ordinary wall-blocks. There is a Roman block 10 feet long and 1½ feet high which the Christians reused as the base stone of the iconostasis when they converted the Erechtheum into a church. It had a base moulding of some sort which the Christians chiselled off. This long block probably formed part of the lowest course of the facing of the shelf. The fact that its dimensions are those of the γογγύλος λίθος ἄθετος, ἀντίμορος ταῖς ἐπικρανίτισιν με͂κος δεκάπος ὕφσος τριο͂ν ἑμιποδίον (I. G., I, 322, col. 1) causes a suspicion that the Roman block simply replaced a Greek one, which in its position at the base of the wall "corresponded to" the ἐπικρανίτιδες at the top of it.

An examination of the foundation for the east wall reveals an interesting condition which is unintelligible if the cella of Athena had a higher floor-level than the western cella. In the north-east corner, a marble block of the north wall is cut back to the line of the west face of the poros foundation (Fig. 10). If the marble block lay buried beneath the floor, why was it so carefully trimmed? The explanation may be offered that the cutting was done when the temple was made over into a church. But the chiseling is more careful than the chiseling done at that time in the Erechtheum. When the eastern partition-wall was removed, rough traces of it were left on the side-walls. The treatment of the block in question is Greek in its carefulness and the cutting was probably made to receive a slab of the marble facing which concealed the foundation-blocks of the east wall.

Figure 10  The N.E. corner of the cella of Athena
Figure 10
The N.E. corner of the cella of Athena

There is another serious difficulty in the way of those who believe that the eastern cella had a higher level than the western. The south wall of the temple had orthostates on the outside but none on the inside where wall-blocks of the usual height took their place. These wall-blocks were easily torn out and have since completely disappeared. In the western chamber orthostates would have been illogical because they would have been high above the level of the floor, but in the eastern cella, if it had the level of the eastern porch orthostates would have been used. Since there were wall-blocks behind the orthostates of the south wall in the western cella, one would reasonably expect orthostates behind wall-blocks in the north wall of the eastern cella, provided that cella was at the level of the eastern porch. But it is absolutely certain that such was not the case. The notched form of the orthostate at the north-east corner of the temple shows that it was in contact with two courses of wall-blocks of regular height in the north wall. Thus the eastern cella, if it lay at the level of its porch strangely lacked interior orthostates in its north and south walls. But if this cella lay at the level of the western cella, the lack becomes at once intelligible. The absence of orthostates at the supposed higher floor-level of the eastern cella combines with the absence of any cutting for a foundation for the wall between the cellae to prove the theory which is in perfect harmony with the simple sequence in the description by Pausanias.

The theory of one level within the Erechtheum seems to contradict and to be contradicted by the evidence which Stevens has found of a door in the east wall (A. J. A., 1906, p. 58 ff.). The contradiction is not necessary, for a flight of steps at the east end of the cella of Athena is perfectly possible. The construction of an apse for the church at the east end of the temple necessitated the removal of a number of foundation-blocks which might have given evidence of steps. However it is quite possible that the foundations for the steps which had no need to rest in rock cuttings were simply laid against, not keyed into the foundations of the east wall. The stairs are drawn in the plan (Fig. 7). The idea of a stair-case at the east end of a cella is illustrated by the temple at Didyma. The eastern door of the Erechtheum was not the normal, not the intended entrance to the cella of Athena, but served as the traditional eastern entrance toward which the xoanon faced. Pausanias like other visitors entered by the πρόστασις ἡ πρὸς τοῦ θυρώματος, the main entrance to the temple.

It is interesting to note some evidence which shows that in the period before the Erechtheum was converted into a Christian church there was no difference of level within the building, namely, the masses of rubble masonry which were placed close to the north wall at approximately equal distances from the eastern cross-wall. They are firmly founded on the rock and reach up nearly to the base of the orthostates. They have no counterparts along the south wall. The screen-wall of the north aisle of the church stood directly over one of the masses. The threshold of it is still in place. These heavy foundations and the interior longitudinal walls of the church cannot be contemporary. The latter were sufficient to carry the weight of the roof of the church; and the screen-wall in the aisle, since it rests partly on a filling of earth, shows that the heavy foundation of rubble masonry underneath had ceased to serve any purpose after the church was built. It was there before that time and therefore must have been laid in a Roman period when the level within the temple was the same.

Any discussion of the workmanship of this mass of stones and mortar has no bearing on the question of its date and that of the threshold above. The point is, the masonry is earlier than the Christian church, and quite embarrasses the advocates of a higher level for the eastern cella in the period before the conversion of the temple into a Christian church. This foundation then is perfectly intelligible in the light of the theory that in Greek times there was but one level within the temple. What the purpose of this rubble masonry was is uncertain. The substantial and solid character of the masses leads one to believe that they were foundations for piers or pillars which reached to the top of the adjacent wall and together with it supported heavy cross-beams which spanned the cella from north to south. The idea may have come to the Romans from the Greek pilaster which as noted above lay approximately midway between the masses of rubble masonry. This was, then, apparently a device for reducing the span from the north to the south wall. The fact that this masonry was laid before the period of the church is of far greater importance than its purpose.

The new plan of the Erechtheum is interesting in the light of the Chandler inscription. If one feels that the magnificent north porch determines the front of the building, then the first room is a satisfactory προστομιαῖον and lies in front of (πρό) the * στομιαῖον in which was the important object of cult, the φρέαρ (στόμιον). The following proportion may be set down: πρόναος : ναός :: προστομιαῖον: * στομιαῖον. Προστομιαῖον and * στομιαῖον are conjectured to have been the official names in the fifth century for the two chambers of the διπλοῦν οἴκημα of Pausanias.

The order followed by the commissioners in their report upon unfinished interior walls was as follows: In the first room entered from the θύρωμα, the προστομιαῖον, 12 tetrapodies were ἀκατάχσεστα. The phrase ἐν τῷ προστομιαίῳ favors the theory that more walls than one are meant. Then in the inner chamber 3 tetrapodies of the παραστάς,[7] i.e., that part of the partition-wall east of the door in the west cella. Then in the third room 6 (?) tetrapodies of the wall πρὸς τὀγάλματος. The order in which the chambers were examined for unfinished walls was that of Pausanias in describing their contents.

Again the new plan fits the treasure list of 306/5 B.C. (I.G., II,2 733). The remarkable feature of the inscription is that it mentions three παραστάδες, first an isolated one, and then a pair of them, one on either side of a door. The single παραστάς, the first to be mentioned is again that part of the partition-wall east of the door in the west cella. This door was near the west end of the wall, so that the space between it and the west wall of the temple was negligible. Thus for one entering by that door there was a παραστάς on the left, but none on the right. When however he passed into the ναὸς τῆς Ἀθηνᾶς through a door which stood a little south of the middle of the wall (and opposite the door in the west wall of the temple) he had a παραστάς upon his left and also upon his right. The παραστάδες are interior walls on either side of a door which in the Erechtheum reached up only five courses above the orthostates. The paintings which Pausanias found in the first room favor the opinion that the treasures which hung on the parastas were on the south side of that wall—i.e., in the second room of the διπλοῦν οἴκημα. Whether or not there is any order in the enumeration of the treasures is a question. If there is, then it naturally begins with treasures first seen after entering from the πρόστασις ἡ πρὸς τοῦ θυρώματος, just as the record of the commissioners in the case of interior walls begins with walls in the first room, just as the description of Pausanias begins with the contents of the first room. This coincidence is remarkable, and is true of no other theory about the temple.

It is a necessary consequence of this interpretation that some treasures were in the west part of the Erechtheum. Perhaps then something may be said for the scholiast on Aristophanes, Plutus, 1183 (reading οἶκος for τοῖχος and keeping in mind the διπλοῦν οἴκημα of Pausanias's description): ὀπίσω τοῦ νεὼ τῆς καλουμένης Πολιάδος Ἀθηνᾶς διπλοῦς οἶκος (τοῖχος) ἔχων θύραν, ὅπου ἦν θησαυροφυλάκιον. The words ἔχων θύραν suggest that the scholiast wished to distinguish between a διπλοῦς οἶκος the two parts of which were connected by a door and another type the two parts of which were not so connected but separately entered from without. Pausanias seems to give an instance of the latter in II, 25, 1. White (Harvard Studies, Vol. VI, p. 39) refers the scholium to the restored west part of the Hekatompedon but does not discuss the meaning of ἔχων θύραν, which Michaelis was unable to explain. In White's so-called opisthodomus, to which door of three possible ones does the scholiast refer? The three chambers of his opisthodomus do not satisfy the requirements of a διπλοῦς οἶκος, the reading which he accepts (op. cit., p. 4, note 3). More reasonable is the interpretation that the scholiast had in mind the west cella of the Erechtheum in which some treasures seemed to have been placed, and that he used the words νεὼς καλουμένης Πολιάδος Ἀθηνᾶς in the stricter sense, just as Pausanias called the east cella ναὸς τῆς Πολιάδος (I. 27. 1), and regarded the διπλοῦς οἶκος as lying behind it. The νεὼς τῆς Ἀθηνᾶς was oriented east, and what was immediately west was behind it. But it is not to be supposed that the west cella of the Erechtheum was ever called an opisthodomus. The scholiast seems however to have the oldest Athena temple in mind.

There is a point perhaps of slight moment which deserves a word. One of the paintings, that of Erechtheus driving a chariot, was painted, according to the scholiast on Aristides, I, 107, 5, behind the goddess. A possible interpretation is that the painting was in the cella of Athena on the wall behind the xoanon, but the paintings of the Butadae were in the first room which Pausanias entered. Unless the painting of Erechtheus was separate from those of the Butadae, then the new arrangement of the interior permits a satisfactory solution of the difficulty. For the east wall of the room in which were the paintings of the Butadae was behind the goddess. According to the old plan, Pausanias found the paintings in the western chamber of the διπλοῦν οἴκημα, that is, between them and the wall against which stood the xoanon, was a chamber. The passage may mean that in a painting Erechtheus appeared behind Athena driving a chariot (Petersen, Jb. Arch. Inst., 1902, p. 64; Burgtempel, p. 110). In the sequence of words in the sentence, ἐν τῇ ἀκροπόλει ὀπίσω τῆς θεοῦ, the second phrase seems to be a closer definition of the place than is given in the first. Furthermore, position was determined by reference to the xoanon. An interior wall was located with reference to it, τὸ πρὸς τὀγάλματος. The scholiast on Aristophanes, Equites, 1169, is interesting in this connection because he shows what part a statue might play in the designation of a temple: δύο εἰσὶν ἐπὶ τῆς ἀκροπόλεως Ἀθηνᾶς ναοί, ὁ τῆς Πολιάδος καὶ ἡ χρυσελεφαντίνη.

In the light of the new arrangement within the Erechtheum, the reference of Vitruvius (IV, 8, 4) to the temple becomes clearer. Speaking of it and other temples he says: "cellae enim longitudinibus duplices sunt ad latitudines uti reliquae, sed is omnia quae solent esse in frontibus ad latera sunt translata" (Petersen, Burgtempel, p. 144). If the cella of Athena was completely separate from that of Erechtheus and at a higher level, he could not have said reasonably of the cella of the temple that it was twice as long as wide like other temples. For the cellae of Athena and Erechtheus ought then to have been considered separately. In the new plan such a statement applies with greater force because the low partitions might be readily disregarded. The second statement shows that Vitruvius regarded the east façade of a temple as the front, and normal place of entrance, but that this and the more elaborate porch were transferred in the case of the Erechtheum to what would be the side of other temples. As Petersen, (op. cit., p. 143) says, the words "columnis adjectis dextra ac sinistra ad umeros pronai" are a clear reference to the north porch. This too seems to be the πρόναος which Lucian refers to in Piscator, 21: ἐνταῦθά που ἐν τῷ προνάῳ τῆς πολιάδος δικάσωμεν. Ἡ ἱέρεια διάθες ἡμῖν τὰ βάθρα, ἡμεῖς δὲ ἐν τοσούτῳ προσκυνήσωμεν τῇ θεῷ. This interpretation is perfectly consistent with the fundamental contention that the πρόστασις ἡ πρὸς τοῦ θυρώματος determines the front of the building.

The theory set forth in the above pages is in perfect accord with the description in Pausanias. It is confirmed by the evidence of the inscriptions and of the building itself so far as that evidence goes. The serious criticism of the accepted plan of the Erechtheum is that all theories based upon it disagree with the written evidences, not with one written record of a later period like the simple account of Pausanias, but with another record centuries earlier, namely the contemporary official inscription. Investigators attempt the solution of the problem after accepting the restored interior as certain. The keynote of the present theory is that the interior of the temple has been too far destroyed to make any one restoration absolutely certain on the basis of the evidence of the building alone, and that all available evidence must be used simultaneously to determine the correct restoration.

IV

THE ERECHTHEUM AS PLANNED

The question as to the original plan of the Erechtheum follows naturally the interpretation of the building as built. That the west wall was planned for its present place seems improbable for a number of reasons. The north porch is out of proportion to the room into which it opens, and by reaching beyond the west wall of the temple becomes in part porch to an open precinct. The west front has columns and Caryatids at different levels (Dörpfeld, Ath. Mitt., 1904, p. 101). The displeasing effect of this difference could not have been concealed by the walls of the Pandroseum, the south one of which reached as high as the parapet of the porch of the maidens. The latter porch illustrates the skill of the architect in concealing differences of level. The unique closed wall on which the maidens stand was his device for concealing from view from without, a door which was below the level of the porch and which belonged to the interior whereas the porch belonged to the exterior. The architect, by placing the entrance to the porch at the north east corner close to the wall, completely concealed the presence of the low door. With this care to conceal a difference of level, the west side of the temple is in marked contrast.

The north-west corner of the western cella is peculiar in two ways. The western jamb of the door cuts 3½ cm. into the west wall of the temple. This suggests crowding and is satisfactorily explained by the condition of the foundations below. The foundation of the west wall does not key into that of the north wall (Fig. 11), a fact seeming to prove that when the latter foundation was laid, it was not the intention of the architect to place a foundation in the line of the present west wall, and to crowd the door jamb into that wall.

Of the symmetrical exterior proposed by Prof. Dörpfeld there lies a suggestion in the fact that the north and south doors have the same axis, although the Caryatid porch has not. The porch seems to have been moved a little to the east of its intended place that it might not project beyond the west wall, but not far enough to prevent the cornice of the porch from so projecting.

The west wall itself offers evidence of a curtailment of the original plan. By way of introduction let us compare the east façade, which is Greek with the west façade, the part of which above the closed wall is Roman (Arx Athenarum, Pl. XXV, D, and A. J. A., 1906, Pl. VIII). The windows in the east wall which Stevens has determined with accuracy were placed at the height of four ordinary courses above the base moulding and two courses from the top of the wall, just as were the Roman windows in the west wall. The second course above the eastern windows was a moulding, the corresponding course above the western windows is plain probably because of the adjacent capitals. Below both sets of windows were three courses of blocks. In the east wall orthostates were justifiable, in the west wall they would have been illogical because on neither side was there a floor, but three courses equal in height to four ordinary courses were placed there. Stevens has shown that the eastern windows were seven courses high including the lintel. The western windows are five courses high. The explanation of the difference of height is simple. The eastern wall was thirteen courses high, the western eleven. The western windows were two courses shorter in order that they and their counterparts, the eastern windows, might be equidistant from the base of the wall, namely four ordinary courses, and from the top of the wall, namely two courses. The fact that the sills of the Greek windows were one meter lower than the Roman windows is of no consequence whatsoever. The fact of great importance is that the east and west windows occupied the same relative position in the façade. The stylobate of the western façade could not be placed so low as the eastern because of the door and the necessity of a heavy block three courses high at the south end of the wall. This block could not be placed lower because of the Cecropium (= temple of Pandrosus?) which crossed the line of the wall, to judge from the cuttings in it beneath the heavy block. Had the architect wished equality of height for the eastern and western colonnades he would have been compelled to place the stylobate of the western two courses lower. This would have made it impossible to place a door in that wall which was necessary probably for a reason of cult.

Figure 11  The interior N.W. corner of the Erechtheum. Modern masonry under N. end of W. wall
Figure 11
The interior N.W. corner of the Erechtheum. Modern masonry under N. end of W. wall

In Roman times therefore the western windows were placed with careful reference to the eastern. Between the columns in each case appeared windows, two in the eastern wall with door between, three in the western where a door was impossible. Both façades were surmounted by epistyle, frieze and pediment. The wall below the western colonnade was a substitute for the higher ground level of the east side. The Romans who repaired the wall repaired it with reference to the east front. For them the west façade was simply a combination of wall with windows, and colonnade. Unless the Greeks had a western façade of columns and wall with windows essentially like the Roman restoration, we are forced to make a strange assumption. The Greek architect conceived the idea of combining wall with colonnade in one plane and then instead of carrying his idea to its conclusion put in a wooden grille in the intercoluminations above a low wall of three courses, a grille which answers to nothing in the east façade, and then left it to the Romans to exploit his idea by placing there three windows.

The only obstacle to the perfectly natural assumption that the Romans restored the essential features of the west wall as it was in Greek times is the testimony of a contemporary inscription (I. G., I, Suppl., 321. col. III, 18) that one Comon a carpenter was paid a sum of 40 dr. for "fencing" (διαφάρχσαντι) four intercolumniations on the wall toward the Pandroseum: διαφάρχσαντι τὰ μετακιόνια τέτταρα ὄντα τὰ πρὸς το͂ Πανδροσείο. The accepted interpretation of the passage is that a wooden grille was the final form of the west wall and remained so until Roman times. The objection to this interpretation is that we must then believe that the Greek architect planned a wooden grille for a marble building in a wall exposed to the elements where repair would be necessary from time to time and that only in the Roman period did the change to more enduring marble take place. It is probable that the wooden grille was only temporary and was soon replaced by a wall with windows. Whatever the interpretation of the inscription, the fact remains that the present form of the west wall is a restoration made with deliberate reference to the east façade. It is a studied restoration which far from being an arbitrary creation of the 4th century A.D., as Penrose (op. cit., p. 93) regarded it, is too original for a Roman period. The imitation is Roman, the idea is Greek. The very same idea is expressed in the Sidon sarcophagus of the mourning women, an Attic work of about 350 B.C. The illusion produced by the sarcophagus is that of female figures standing between the columns of the peristyle of a temple (Hamdy Bey-Reinach, Une Nécropole Royale à Sidon, p. 241). The west façade in Greek times as in Roman was simply a compression together in one plane of colonnade and wall—a combination to which the architect was forced by the curtailment of his plan.

It is almost certain that the original plan of the architect was for a building with an east and west portico equidistant from the north porch as Prof. Dörpfeld has maintained. The east and west façades were to be exactly alike, but, prevented by religious conservatism from building upon the sites of the Cecropium and Pandroseum, and thus compelled to abandon the western half of the original building, the architect sought still to save the similarity of the east and west façades. Since he was unable to build his projected west portico at the line to which he was forced back, he evolved as a substitute the idea of placing all the essential features of his west portico in one plane—column bases and base moulding of wall, columns and wall with windows, frieze and pediment. The low wall in the southernmost intercolumniation which for some reason was not completely closed was three courses high. The northern intercolumniation was completely closed as in Roman times and in the central ones, the windows rested on three courses equal in height to four normal Greek courses.

It must have been the desire for close similarity between the two façades which prevented both Greek and Roman architect from placing four normal courses beneath the western windows. The change from blocks of standard height led to a complication because there were eleven ordinary courses in the western wall instead of twelve which would have given exactly nine courses of the higher blocks. The eastern windows were simultaneously visible between the columns from points in the axis of the door (Fig. 7). It is natural to assume that those of the original west façade were to have been so. The curtailment of the plan which compelled the architect to place a compressed west façade on a high socle, eliminated the door. A natural substitution was a third window.

This theory as to the composition of the west wall suggests an interpretation of the unusual construction at the upper south-west corner of the temple (A. J. A., 1908, p. 191, fig. 2, and p. 194, fig. 6; 1910, p. 297, fig. 3). There the south wall was reduced to one half of its regular thickness, and this thinner wall flanked on the east by the metopon which rested in part upon a square horizontal slab. The purpose of this metopon has remained obscure.

As hitherto remarked, it was the architect's intention to close the southern as well as the northern intercolumniation of the west wall but he was prevented, apparently for some religious reason. Now it seems very probable that the unusual construction at the corner is the result of an attempt to build a substitute wall for that which could not be placed in the southern intercolumniation. Two considerations favor this explanation. In the first place the horizontal slab inclines toward the opening. The certain purpose of this inclination was to shed rain-water. Secondly, traces on the south wall show that the metopon was coextensive in height with the opening and projected along the eastern edge of the horizontal slab. The epistyle of the metopon, which appears in the restoration (A. J. A., 1908, fig. 6, p. 196) is purely a conjecture and may be eliminated. But how far did this metopon project into the building? Was it coextensive in width as well as in height with the opening? The distance which the metopon projected into the building is not certainly known. In the restoration it is given as one foot but this is a calculation based on a combination of probabilities. The obvious provision to keep out rain-water, if it was to be successful, demands the extension of the metopon to the inner corner of the horizontal slab. But this slab unsupported could not have carried a marble metopon. This is a difficulty which seems to compel the assumption that the metopon was in part of lighter material.

Apart from serving the purpose of keeping out rain, the conjectured metopon would also be a counterpart to the northern intercolumniation when the façade was viewed from the west. The increase in weight due to the metopon and the horizontal slab necessitated a counterbalancing reduction in the weight of the south wall because of its insecure foundations. The idea, in short, is simply this. Just as when the architect was not allowed to place the west façade where he wished and retreated to a line at which he was allowed to build it in a necessarily modified form, so when he could not build a wall in the southern intercolumniation of that façade, he withdrew still farther back and built a substitute at the line allowed. The extra weight thus produced was partly responsible for the thinning of the insecurely founded south wall.

It is Prof. Dörpfeld's theory that the Cecropium compelled the architect to place the present west wall 1 m. east of the line at which it was intended in the original plan to stand (Ath. Mitt., 1904, p. 105). He therefore regards that wall as an interior one of the original symmetrical temple. The theory here advanced is that the west wall is the original west façade compressed into one plane and placed at the line up to which the architect was permitted to build. The west wall of the Pre-Persian Erechtheum seems to have stood at about the same line to judge from the representation of it and the olive close by in the archaic pedimental sculpture to which reference has already been made (Petersen, Burgtempel, p. 22, abb. 2). Just as the architect of the Propylaea planned to cut through the Pelasgic wall and to build upon the precinct of Brauronian Artemis, but when he came to lay foundations was stopped at the wall, so the contemporary architect of the Erechtheum planned a symmetrical temple the west part of which was to occupy the site of the precinct of Pandrosus and Cecrops, but when he came to actual construction was stopped by the same religious conservatism. The form of the present west wall is as much like the originally planned west façade as the architect could make it. East and west façades were to be equidistant from the north porch and from the Caryatid Porch which would have served to break the monotony of the long rear wall.

Having discovered in the west wall the compressed façade of an originally symmetrically planned Erechtheum, it is desirable to inquire whether the curtailment of that plan caused a crowding of cults within the temple as finally built. It has already been remarked that the feeling which the north porch creates is that it should be, and was intended to be the porch to an interior of larger dimensions than those of the present plan. Now the thalassa and the mark of the trident were fixed, but the paintings of the Butadae and the three altars were movable. It is altogether probable that the congestion in the west half of the present Erechtheum was due to the crowding in of a chamber with the three altars of Poseidon-Erechtheus, Hephaestus and Butes, and the paintings of the Butadae—a chamber which in the original plan was to be placed at the west end of the symmetrical temple (Fig. 12).

Within the original Erechtheum at the east end marked off by a partition-wall was to be the shrine of Athena Polias. The western chamber of Poseidon-Erechtheus, the exact counterpart of the eastern, was to receive the altars and paintings. The intervening central chamber of proportions in harmony with those of the north porch was to contain the thalassa and the sacred olive, which would require that the temple be in part hypaethral. Furtwängler (Sitzb. Mün. Akad., 1904, p. 371) rightly indeed objects to Dörpfeld's theory that the western cella in the original temple was to be an opisthodomus, on the ground that if the eastern cella contained a divinity, the western ought also. Furthermore, for those who believe that the magnificent north porch determines the front of the Erechtheum, the western cella would have been situated on the side, not at the rear of the temple. The interior wall-pilasters on either side of the doors were intended in the original to carry heavy cross-beams. In the temple as built, the eastern pair were carried up only five courses above the orthostates, i.e. as high as the partition-walls. Their completion was rendered unnecessary when the builders decided to put in the καμπύλη σελίς.

Figure 12  The original plan of the Erechtheum.
Figure 12
The original plan of the Erechtheum.

When this original plan had to be abandoned, not only was the large central chamber reduced in breadth, but was divided into a front and rear cella. In the first of these, which one entered immediately from the north porch (ἐσελθοῦσι) were placed the three altars and on the walls, the paintings of the Butadae. In the inner cella (ἔνδον) were the trident-mark and the thalassa. It is perfectly clear why Pausanias found no door leading from the first chamber of the διπλοῦν οἴκημα into the ναὸς τῆς Ἀθηνᾶς. In the original plan, the cella of Athena and the large central chamber of the tokens were connected by a door in the middle of their partition-wall, while the cellae of Athena and Poseidon-Erechtheus were not to be in immediate connection. These relations were preserved in the curtailed plan. The meaning of the door in the west wall is also simple. In the original plan the sacred olive tree and the thalassa were to stand in the large central chamber, but in the curtailed plan the sacred olive was left outside the temple and in the Pandroseum. A closed wall between the two tokens would have separated them completely. They belonged together, and a door was a poor substitute for a common chamber but it was the only means of connection possible.

The north porch in the original plan was to admit to both thalassa and sacred olive, but in the curtailed temple which left the olive outside, it could admit directly to the latter only by the addition of the little door in the southwest corner. The extreme simplicity of this door which is without such simple ornamentation as that of the south door suggests that in the original plan it was not intended to stand beside the elaborate north door. The little door as well as the one in the west wall were not features of the original Erechtheum, and their presence was therefore not made more noticeable by the addition of mouldings of any kind.

This interpretation, if correct, warrants the statement of the general principle that the Greek architect sought, in case of curtailment of his plan, to preserve as far as possible the essential features, and the relations of the parts to one another, of the original. The builder of the Erechtheum saved his west façade in modified form and found a place for the west cella in the reduced central chamber.

The Erechtheum as originally planned was an altogether symmetrical structure. The splendid north portal was to lead immediately into the cella of the tokens, on either side of which were the shrines of the divinities that had contended for the land of Attica. The balance of structure would have reflected a balance of cults. The original Erechtheum, in short, was an architectural sentence finely illustrating the μέν and δέ of Greek feeling. With the Parthenon and the Propylaea, it was to form a group of symmetrical monuments to crown the Athenian acropolis in a manner worthy of the Periclean Age.

FOOTNOTES:

[1] A drawing of the façade as seen from this point is much needed.

[2] See Dörpfeld, Ath. Mitt., 1911, p. 59, for latest discussion of the struggle.

[3] The few known facts about the Arrephoroi are conveniently gathered together by Frazer, op. cit., II, p. 344.

[4] I am indebted to Dr. L. D. Caskey of the Museum of Fine Arts at Boston for the photograph. He has also very kindly given me the benefit of his intimate knowledge of the Erechtheum in various suggestive criticisms. I take this occasion to express my sense of obligation.

[5] Pausanias seems to have been mistaken in speaking of two. So Frazer, op. cit., II, p. 574, note 6.

[6] Cf. the disc with octopus ornament on the dress of one of the maidens with that published by Schliemann, Mykenae, p. 194, no. 240.

[7] The origin and the meaning of the term παραστάς is clear. A παραστάς is that which stands παρά a door or opening, i.e. a jamb. A passage in the inscription which gives specifications for Philon's Arsenal (I. G. II,^2 1054) is important in this connection. After prescribing the dimensions of the door of the arsenal, the material of the lintel, the inscription adds παραστάδας στήσας λίθου πεντεληικοῦ κ. τ. λ. The παραστάδες are clearly the door jambs which stand παρά the door. By an easy and simple extension the word came to designate not only the jamb but the wall of which the jamb was a part.